40 Farmington Rd, Newton MA  02465-1107 exterior

40 Farmington Rd Newton, MA 02465 / 1107

Residence for Single Family

(UPDATED: 07/12/2025)
  • 2 Beds
  • 3 Baths
  • 2.890 square feet
Property Report

Information about property on 40 Farmington Rd, Newton MA, 02465-1107. Find out owner contacts, building history, price, neighborhood at Homemetry Address Directory.

Property Details

This is a single-family estate, which is situated at 40 Farmington Road, Newton, MA.

Facts

  • Built in 1941
  • Property use Single Family
  • Lot size 7,620 sqft
  • Effective area 2,314 sqft
  • Gross building area 2,890 sqft
  • Building type Residential
  • Rooms 5
  • Bedrooms 2
  • Stories 1,75
  • Exterior condition Average
  • Trim Full Wall
  • Foundation type Concrete
  • Roof material Asphalt Shingl
  • Fuel type Gas
  • Air conditioning None
  • Frontage 10 feet
  • Basement area 768 sqft
  • Finished basement area 384 sqft
  • Enclosed porch area 144 sqft
  • Deck area 156 sqft
  • Attached garage area 190 sqft
  • Heating & Cooling
  • Heat type Hot Wtr Radiat
  • Exterior Home Features
  • Exterior walls Clapboard
  • Roof type Gable

Householders and Tenants for 40 Farmington Rd, Newton MA

Possible residents contact details

Person Name Phone Number Additional Info
Barbara C Hayes
Diane Giardina
Diane M Cucchi Age: 67
617-244-****
Doris L Miller
Hazel Clark
James V Cucchi Age: 35
617-244-****
Residential status:
Homeowner
Melissa A Cucchi Age: 34
617-244-****
Residential status:
Homeowner
Richard C Hayes
Robert E Clark
Ronald S Cucchi Age: 68
617-244-****
Residential status:
Homeowner
Job:
Craftsman/Blue Collar
Taylor E Miller
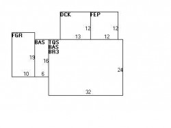
40 Farmington Rd, Newton MA  02465-1107 plot plan 40 Farmington Rd, Newton MA  02465-1107 floor plan 40 Farmington Rd, Newton MA  02465-1107 aerial view

Cost estimate history

YearAssessment
2016 $511,700
2015 $478,200
2014 $455,400
2013 $455,400
2012 $455,400
2011 $467,900
2010 $477,400
2009 $487,100
2008 $487,100
2007 $499,200
2006$484,700
2005$461,600
2004$417,600
2003$372,900
2002$372,900
2001$318,400
2000$290,800
1999$264,600
1998$246,700
1997$233,800
1996$222,700
1995$211,200
1994$207,100
1993$207,100
1992$198,200

Where is 40 Farmington Rd, Newton MA located on map?

Properties Nearby

Street AddressResidens/Landlords
5 Farmington Rd, Newton, MA 02465-1106
Single Family
  • 3 beds
  • 1 bath
  • 2,030 sqft
  • Built in 1947
Robert F Moakley, Maureen E Moakley
 

FAQ about the house at 40 Farmington Rd, Newton, MA


NOTICE: You may not use RadioAwards or the information it provides to make decisions about employment, credit, housing or any other purpose that would require Fair Credit Reporting Act (FCRA) compliance. RadioAwards is not a Consumer Reporting Agency (CRA) as defined by the FCRA and does not provide consumer reports.