39 Crehore Dr, Newton MA  02462-1108 exterior

39 Crehore Dr Newton, MA 02462 / 1108

Residence for Single Family

(UPDATED: 07/15/2025)
  • 2 Beds
  • 2 Baths
  • 2.467 square feet
Property Report

Information about property on 39 Crehore Dr, Newton MA, 02462-1108. Find out owner contacts, building history, price, neighborhood at Homemetry Address Directory.

Property Details

At 39 Crehore Drive, Newton, Massachusetts based a single-family home.

Facts

  • Built in 1939
  • Property use Single Family
  • Lot size 6,514 sqft
  • Effective area 2,248 sqft
  • Gross building area 2,467 sqft
  • Building type Residential
  • Rooms 7
  • Bedrooms 2
  • Stories 1,75
  • Exterior condition Average
  • Trim None
  • Foundation type Concrete
  • Roof material Asphalt Shingl
  • Fuel type Gas
  • Frontage 103 feet
  • Basement area 605 sqft
  • Heating & Cooling
  • Heat type Steam
  • Exterior Home Features
  • Exterior walls Wood Shingle
  • Roof type Gable

Features

  • Bath quality: Above Average

Householders and Tenants for 39 Crehore Dr, Newton MA

Possible residents contact details

Person Name Phone Number Additional Info
Christopher Dimmock
617-630-****
DIMMOCK JOHN CHRISTOPHE &AL
Elizabeth A Dooley Age: 57
617-630-****
Howard S Kirshner
John C Dimmock Age: 57
617-630-****
KIRSHNER CAROL ADAMS
Peter F May
Pond Suzanne
617-630-****
Randolph D Werner
Ronna F Werner
Sidneyn Hetzler Jr
Suzanne M Pond Age: 61
617-630-****
Residential status:
Homeowner
Job:
Production Occupations
Victoria C May
Virginia L Hetzler
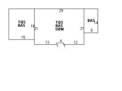
39 Crehore Dr, Newton MA  02462-1108 plot plan 39 Crehore Dr, Newton MA  02462-1108 floor plan 39 Crehore Dr, Newton MA  02462-1108 aerial view

Purchase History

DateEventPriceSourceAgents
07/24/1996 Sold $313,000 Public records
08/16/1995 Sold $295,000 Public records

Cost estimate history

YearAssessment
2016 $533,200
2015 $498,300
2014 $484,500
2013 $484,500
2012 $484,500
2011 $528,800
2010 $539,600
2009 $550,600
2008 $525,300
2007 $510,100
2006$495,200
2005$462,800
2004$422,900
2003$377,600
2002$377,600
2001$342,100
2000$312,400
1999$284,300
1998$282,400
1997$266,400
1996$256,500
1995$212,300
1994$208,100
1993$208,100
1992$212,200

Where is 39 Crehore Dr, Newton MA located on map?

Crehore Dr Incidents registered in FEMA
(Federal Emergency Management Agency)

To date, we have no information about incidents registered in FEMA in 2025
11 Jun 2003 Hazardous condition, other
Property Use —
1 or 2 family dwelling

Properties Nearby

Street AddressResidens/Landlords
 

FAQ about the house at 39 Crehore Dr, Newton, MA


NOTICE: You may not use RadioAwards or the information it provides to make decisions about employment, credit, housing or any other purpose that would require Fair Credit Reporting Act (FCRA) compliance. RadioAwards is not a Consumer Reporting Agency (CRA) as defined by the FCRA and does not provide consumer reports.