37 Ellis Rd, Newton MA  02465-2916 exterior

37 Ellis Rd Newton, MA 02465 / 2916

Residence for Single Family

(UPDATED: 09/01/2025)
  • 3 Beds
  • 3 Baths
  • 3.395 square feet
Property Report

Information about property on 37 Ellis Rd, Newton MA, 02465-2916. Find out owner contacts, building history, price, neighborhood at Homemetry Address Directory.

Property Details

A single-family estate at 37 Ellis Rd, Newton, MA.

Facts

  • Built in 1952
  • Property use Single Family
  • Lot size 21,828 sqft
  • Effective area 2,733 sqft
  • Gross building area 3,395 sqft
  • Building type Residential
  • Rooms 6
  • Bedrooms 3
  • Stories 1
  • Exterior condition Fair
  • Trim None
  • Foundation type Conc Block
  • Roof material Asphalt Shingl
  • Fuel type Gas
  • Air conditioning Central
  • Frontage 100 feet
  • Basement area 1,209 sqft
  • Finished basement area 447 sqft
  • Enclosed porch area 120 sqft
  • Basement garages 2
  • Heating & Cooling
  • Heat type Hot Wtr Radiat
  • Exterior Home Features
  • Exterior walls Brick Veneer
  • Roof type Hip

Features

  • Kitchen quality: Below Average
  • Bath quality: Average

Householders and Tenants for 37 Ellis Rd, Newton MA

Possible residents contact details

Person Name Phone Number Additional Info
Barbara Hurst
Elsie M Hurst Age: 106
617-332-****
Femke F Vernooij Age: 48
Residential status:
Homeowner
Harold Hurst Age: 108
617-332-****
Joseph C Lamantia
Marsha Hunt
Marsha Hurst
Robert A Hurst
617-332-****
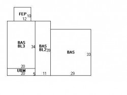
37 Ellis Rd, Newton MA  02465-2916 plot plan 37 Ellis Rd, Newton MA  02465-2916 floor plan 37 Ellis Rd, Newton MA  02465-2916 aerial view

Purchase History

DateEventPriceSourceAgents
12/18/2013 Sold $875,000 Agent Submission Adam Shamus

Cost estimate history

YearAssessment
2016 $890,800
2015 $832,500
2014 $791,900
2013 $791,900
2012 $746,700
2011 $732,700
2010 $747,700
2009 $763,000
2008 $763,000
2007 $793,600
2006$770,500
2005$733,800
2004$676,900
2003$604,400
2002$604,400
2001$515,200
2000$470,500
1999$428,100
1998$364,400
1997$347,000
1996$330,500
1995$315,400
1994$300,400
1993$300,400
1992$331,300

Where is 37 Ellis Rd, Newton MA located on map?

Ellis Rd Incidents registered in FEMA
(Federal Emergency Management Agency)

To date, we have no information about incidents registered in FEMA in 2025
15 Jun 2003 Lock-out
Property Use —
1 or 2 family dwelling

Properties Nearby

Street AddressResidens/Landlords
 

FAQ about the house at 37 Ellis Rd, Newton, MA


NOTICE: You may not use RadioAwards or the information it provides to make decisions about employment, credit, housing or any other purpose that would require Fair Credit Reporting Act (FCRA) compliance. RadioAwards is not a Consumer Reporting Agency (CRA) as defined by the FCRA and does not provide consumer reports.