36 Brackett Rd, Newton MA  02458-2612 exterior

36 Brackett Rd Newton, MA 02458 / 2612

Residence for Single Family

(UPDATED: 09/17/2025)
  • 4 Beds
  • 3 Baths
  • 6.846 square feet
Property Report

Information about property on 36 Brackett Rd, Newton MA, 02458-2612. Find out owner contacts, building history, price, neighborhood at Homemetry Address Directory.

Property Details

As is shown in our records this property is situated at 36 Brackett Road, Newton, MA.

Facts

  • Built in 1935
  • Property use Single Family
  • Lot size 13,898 sqft
  • Effective area 6,501 sqft
  • Gross building area 6,846 sqft
  • Building type Residential
  • Rooms 12
  • Bedrooms 4
  • Bathrooms 3
  • Stories 2,75
  • Exterior condition Average
  • Trim None
  • Foundation type Concrete
  • Roof material Asphalt Shingl
  • Fuel type Gas
  • Air conditioning Central
  • Fireplaces 2
  • Frontage 70 feet
  • Basement area 1,381 sqft
  • Deck area 642 sqft
  • Detached garage area 380 sqft
  • Heating & Cooling
  • Heat type Hot Wtr Radiat
  • Exterior Home Features
  • Exterior walls Brick Veneer
  • Roof type Gable

Features

  • Kitchen quality: Good
  • Bath quality: Above Average

Householders and Tenants for 36 Brackett Rd, Newton MA

Possible residents contact details

Person Name Phone Number Additional Info
Adam N Letvin Age: 38
617-969-****
Residential status:
Homeowner
Alfred Segall
Andrea C Letvin Age: 75
617-969-****
Job:
Professional/Technical
Elizabeth M Letvin Age: 35
617-947-****
Residential status:
Homeowner
Marion C Letvin Age: 75
617-969-****
Residential status:
Homeowner
Job:
Sales Occupations
Norman L Letvin Age: 75
617-969-****
Residential status:
Homeowner
Job:
Sales Occupations
P Liana Age: 51
Rebecca Letvin Age: 41
617-969-****
Rita Babihuga
Ruth M Segall
Zhu Lixin Age: 55

Businesses

Organization Phone Number Additional Info
Dr. Norman L. Letvin, MD
Industry:
Medical Doctor's OfficeNonclassifiable Establishments
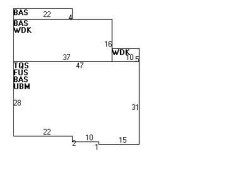
36 Brackett Rd, Newton MA  02458-2612 plot plan 36 Brackett Rd, Newton MA  02458-2612 floor plan 36 Brackett Rd, Newton MA  02458-2612 aerial view

Cost estimate history

YearAssessment
2016 $1,802,300
2015 $1,684,400
2014 $1,600,700
2013 $1,600,700
2012 $1,600,700
2011 $1,576,500
2010 $1,608,700
2009 $1,641,500
2008 $1,641,500
2007 $1,664,900
2006$1,616,400
2005$1,539,400
2004$1,424,500
2003$1,271,900
2002$1,271,900
2001$1,049,900
2000$958,800
1999$867,300
1998$617,700
1997$605,600
1996$576,800
1995$549,200
1994$499,300
1993$499,300
1992$511,800

Where is 36 Brackett Rd, Newton MA located on map?

Brackett Rd Incidents registered in FEMA
(Federal Emergency Management Agency)

To date, we have no information about incidents registered in FEMA in 2025
14 Jan 2008 Electrical wiring/equipment problem, other
Property Use —
Residential street, road or residential driveway

Properties Nearby

Street AddressResidens/Landlords
 

FAQ about the house at 36 Brackett Rd, Newton, MA


NOTICE: You may not use RadioAwards or the information it provides to make decisions about employment, credit, housing or any other purpose that would require Fair Credit Reporting Act (FCRA) compliance. RadioAwards is not a Consumer Reporting Agency (CRA) as defined by the FCRA and does not provide consumer reports.