35 Melbourne Ave, Newton MA  02460-1221 exterior

35 Melbourne Ave Newton, MA 02460 / 1221

Residence for Single Family

(UPDATED: 08/23/2025)
  • 6 Beds
  • 3 Baths
  • 2.566 square feet
Property Report

Information about property on 35 Melbourne Ave, Newton MA, 02460-1221. Find out owner contacts, building history, price, neighborhood at Homemetry Address Directory.

Property Details

At 35 Melbourne Ave, Newton, MA stands a property, which was built in 1925.

Facts

  • Built in 1925
  • Property use Single Family
  • Lot size 5,171 sqft
  • Effective area 2,377 sqft
  • Gross building area 2,566 sqft
  • Building type Residential
  • Rooms 7
  • Bedrooms 3
  • Stories 2
  • Exterior condition Average
  • Trim None
  • Foundation type Concrete
  • Roof material Asphalt Shingl
  • Fuel type Gas
  • Air conditioning Central
  • Frontage 55 feet
  • Basement area 756 sqft
  • Finished basement area 567 sqft
  • Shed area 99 sqft
  • Porch area 154 sqft
  • Deck area 144 sqft
  • Detached garage area 198 sqft
  • Heating & Cooling
  • Heat type Hot Water
  • Exterior Home Features
  • Exterior walls Vinyl Siding
  • Roof type Hip

Features

  • Kitchen quality: Above Average
  • Interior condition: Good

Householders and Tenants for 35 Melbourne Ave, Newton MA

Possible residents contact details

Person Name Phone Number Additional Info
FINELLI CONCETTA S EXOR
FINELLI MARY C S EXOR
FINELLI MARY S EXOR
FINELLI ROBERT N EXOR
ROUSSEAU-FINELLI SHARON &AL
Robert S Finelli
617-244-****
Sharon R Finelli Age: 61
617-244-****
Residential status:
Homeowner
Job:
Educator
Sharon Rousseau
617-244-****
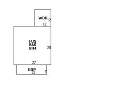
35 Melbourne Ave, Newton MA  02460-1221 plot plan 35 Melbourne Ave, Newton MA  02460-1221 floor plan 35 Melbourne Ave, Newton MA  02460-1221 aerial view

Purchase History

DateEventPriceSourceAgents
03/31/1993 Sold $183,000 Public records

Cost estimate history

YearAssessment
2016 $582,700
2015 $544,600
2014 $548,800
2013 $548,800
2012 $548,800
2011 $549,100
2010 $560,500
2009 $571,900
2008 $571,900
2007 $545,000
2006$529,100
2005$503,900
2004$354,000
2003$316,100
2002$316,100
2001$256,800
2000$234,500
1999$213,400
1998$193,800
1997$193,800
1996$184,600
1995$180,400
1994$184,100
1993$176,500
1992$182,000

Where is 35 Melbourne Ave, Newton MA located on map?

Properties Nearby

Street Address Residens/Landlords
 

FAQ about the house at 35 Melbourne Ave, Newton, MA


NOTICE: You may not use RadioAwards or the information it provides to make decisions about employment, credit, housing or any other purpose that would require Fair Credit Reporting Act (FCRA) compliance. RadioAwards is not a Consumer Reporting Agency (CRA) as defined by the FCRA and does not provide consumer reports.