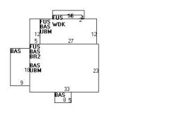
Purchase History
| Date | Event | Price | Source | Agents |
|---|---|---|---|---|
| 09/10/1990 | Sold | $281,500 | Public records |
Cost estimate history
| Year | Assessment | ||
|---|---|---|---|
| 2016 | $759,100 | ||
| 2015 | $709,400 | ||
| 2014 | $680,200 | ||
| 2013 | $680,200 | ||
| 2012 | $680,200 | ||
| 2011 | $633,300 | ||
| 2010 | $565,700 | ||
| 2009 | $577,200 | ||
| 2008 | $577,200 | ||
| 2007 | $598,700 | ||
| 2006 | $581,300 | ||
| 2005 | $553,600 | ||
| 2004 | $511,800 | ||
| 2003 | $457,000 | ||
| 2002 | $457,000 | ||
| 2001 | $385,500 | ||
| 2000 | $352,100 | ||
| 1999 | $320,400 | ||
| 1998 | $313,700 | ||
| 1997 | $295,900 | ||
| 1996 | $281,800 | ||
| 1995 | $269,300 | ||
| 1994 | $261,500 | ||
| 1993 | $240,800 | ||
| 1992 | $227,400 |
Solon St Fire Incident History
To date, we have no information about fire incidents in 2025
18 Jun 2017
Building fires
Property Use —
1 or 2 family dwelling
Area of Origin —
Storage area, other
First Ignition —
Cooking materials, including edible materials
Heat Source —
Hot ember or ash
Solon St Incidents registered in FEMA
(Federal Emergency Management Agency)
To date, we have no information about incidents registered in FEMA in 2025
27 Feb 2015
Electrical wiring/equipment problem, other
Property Use —
1 or 2 family dwelling
Properties Nearby
| Street Address | Residens/Landlords |
|---|


