34 Andrew St, Newton MA  02461-2103 exterior

34 Andrew St Newton, MA 02461 / 2103

Residence for Single Family

(UPDATED: 09/16/2025)
  • 3 Beds
  • 2 Baths
  • 2.932 square feet
Property Report

Information about property on 34 Andrew St, Newton MA, 02461-2103. Find out owner contacts, building history, price, neighborhood at Homemetry Address Directory.

Property Details

This property with near twenty-one hundred square feet of effective area on about a fourth of acre was put up in 1959.

Facts

  • Built in 1959
  • Property use Single Family
  • Lot size 10,675 sqft
  • Effective area 2,112 sqft
  • Gross building area 2,932 sqft
  • Building type Residential
  • Rooms 7
  • Bedrooms 3
  • Bathrooms 2
  • Stories 1
  • Exterior condition Average
  • Trim Half Wall
  • Foundation type Concrete
  • Roof material Asphalt Shingl
  • Fuel type Oil
  • Air conditioning Central
  • Frontage 90 feet
  • Basement area 1,416 sqft
  • Finished basement area 404 sqft
  • Porch area 28 sqft
  • Heating & Cooling
  • Heat type Hot Water
  • Exterior Home Features
  • Exterior walls Asbest Shingle
  • Roof type Gable

Features

  • Kitchen quality: Below Average

Householders and Tenants for 34 Andrew St, Newton MA

Possible residents contact details

Person Name Phone Number Additional Info
BLOOM INVESTMENT TRUST
BLOOM INVESTMENT TRUST S TRS
Daniel L Huang Age: 63
617-710-****
Residential status:
Homeowner
Job:
Clerical/White Collar
Harry L Bloom Age: 113
617-527-****
Jacob Bloom Age: 108
617-527-****
Jeannette P Bloom Age: 108
617-527-****
Phyllis Wilker
Tina Huang
617-332-****
Residential status:
Homeowner
Wu Huang
617-332-****
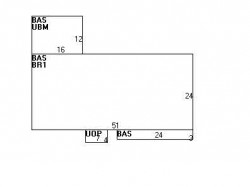
34 Andrew St, Newton MA  02461-2103 plot plan 34 Andrew St, Newton MA  02461-2103 floor plan 34 Andrew St, Newton MA  02461-2103 aerial view

Purchase History

DateEventPriceSourceAgents
09/04/2008 Sold $628,000 Public records

Cost estimate history

YearAssessment
2016 $595,000
2015 $556,100
2014 $529,800
2013 $529,800
2012 $529,800
2011 $534,000
2010 $544,900
2009 $556,000
2008 $556,000
2007 $569,800
2006$553,200
2005$526,900
2004$489,300
2003$436,900
2002$436,900
2001$365,200
2000$333,500
1999$303,500
1998$292,600
1997$276,000
1996$262,900
1995$242,500
1994$235,400
1993$235,400
1992$245,300

Where is 34 Andrew St, Newton MA located on map?

Andrew St Fire Incident History

To date, we have no information about fire incidents in 2025
22 Apr 2010 Brush, or brush and grass mixture fire
Property Use —
Open land or field
Area of Origin —
Wildland, woods
First Ignition —
Chips, including wood chips
Heat Source —
Match

Properties Nearby

Street AddressResidens/Landlords
 

FAQ about the house at 34 Andrew St, Newton, MA


NOTICE: You may not use RadioAwards or the information it provides to make decisions about employment, credit, housing or any other purpose that would require Fair Credit Reporting Act (FCRA) compliance. RadioAwards is not a Consumer Reporting Agency (CRA) as defined by the FCRA and does not provide consumer reports.