34 Alden Pl, Newton MA  02465-1529 exterior

34 Alden Pl Newton, MA 02465 / 1529

Residence for Single Family

(UPDATED: 09/23/2025)
  • 3 Beds
  • 2 Baths
  • 2.442 square feet
Property Report

Information about property on 34 Alden Pl, Newton MA, 02465-1529. Find out owner contacts, building history, price, neighborhood at Homemetry Address Directory.

Property Details

This property with near nineteen hundred square feet of effective area on 0,1 acres was originally built in 1900.

Facts

  • Built in 1900
  • Property use Single Family
  • Lot size 4,227 sqft
  • Effective area 1,884 sqft
  • Gross building area 2,442 sqft
  • Building type Residential
  • Rooms 7
  • Bedrooms 3
  • Bathrooms 2
  • Stories 2,5
  • Exterior condition Average
  • Trim None
  • Foundation type Brick/Fldstone
  • Roof material Asphalt Shingl
  • Fuel type Gas
  • Air conditioning Central
  • Frontage 70 feet
  • Basement area 558 sqft
  • Finished basement area 279 sqft
  • Porch area 36 sqft
  • Enclosed porch area 72 sqft
  • Detached garage area 209 sqft
  • Heating & Cooling
  • Heat type Forced Air-Duc
  • Exterior Home Features
  • Exterior walls Vinyl Siding
  • Roof type Gable

Features

  • Kitchen quality: Above Average

Householders and Tenants for 34 Alden Pl, Newton MA

Possible residents contact details

Person Name Phone Number Additional Info
Francis M Kuehn
617-965-****
Frank R Barberio Age: 85
617-332-****
Glenn S Benson Age: 63
617-332-****
John Barberio
KUEHN ERIN RUANE
Lillian Benson
Mary Barberio Age: 108
Melanie Torosyan
Roben Torosyan
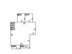
34 Alden Pl, Newton MA  02465-1529 plot plan 34 Alden Pl, Newton MA  02465-1529 floor plan 34 Alden Pl, Newton MA  02465-1529 aerial view

Purchase History

DateEventPriceSourceAgents
07/31/2012 Sold $487,000 Agent Submission Jon Shilalis
06/03/2009 Sold $444,500 Public records
07/15/1998 Sold $255,000 Public records

PURCHASE HISTORY 34 Alden Pl, Newton MA

07/15/199807/31/2012Date$0$30k$60k$90k$120k$150k$180k$210k$240k$270k$300k$330k$360k$390k$420k$450k$480k$510kPrices

Cost estimate history

YearAssessment
2016 $495,800
2015 $463,400
2014 $442,000
2013 $442,000
2012 $428,400
2011 $438,000
2010 $446,900
2009 $456,000
2008 $456,000
2007 $459,800
2006$396,600
2005$377,700
2004$335,900
2003$285,900
2002$285,900
2001$235,800
2000$215,300
1999$195,900
1998$182,800
1997$173,300
1996$165,000
1995$155,300
1994$155,300
1993$155,300
1992$162,200

Where is 34 Alden Pl, Newton MA located on map?

Properties Nearby

Street AddressResidens/Landlords
15 Alden Pl, Newton, MA 02465-1567
Two Family
  • 4 beds
  • 5,220 sqft
  • Built in 1890
Home Theatre Specialists, Charles J Berlin
19 Alden Pl, Newton, MA 02465-1567
Two Family
  • 4 beds
  • 3,126 sqft
  • Built in 1890
Feastcreativecatering, Kimberly A Cox
21 Alden Pl, Newton, MA 02465-1567
Two Family
  • 4 beds
  • 3,126 sqft
  • Built in 1890
Grace Chan, Siok H Chan
 

FAQ about the house at 34 Alden Pl, Newton, MA


NOTICE: You may not use RadioAwards or the information it provides to make decisions about employment, credit, housing or any other purpose that would require Fair Credit Reporting Act (FCRA) compliance. RadioAwards is not a Consumer Reporting Agency (CRA) as defined by the FCRA and does not provide consumer reports.