331 Watertown St, Newton MA  02458-1322 exterior

331 Watertown St Newton, MA 02458 / 1322

  • 3 Baths
  • 8.431 square feet
Property Report

Information about property on 331 Watertown St, Newton MA, 02458-1322. Find out owner contacts, building history, price, neighborhood at Homemetry Address Directory.

Property Details

As is shown in our records this property is placed at 331 Watertown St, Newton, MA.

Facts

  • Built in 1920
  • Lot size 5,900 sqft
  • Effective area 5,624 sqft
  • Gross building area 8,431 sqft
  • Building type Commercial
  • Rooms 6
  • Bathrooms 3
  • Stories 2,5
  • Fuel type Typical
  • Air conditioning None
  • Frontage 45 feet
  • Finished attic area 894 sqft
  • Basement area 2,268 sqft
  • Porch area 50 sqft
  • Enclosed porch area 141 sqft
  • Heating & Cooling
  • Heat type Hot Water

Householders and Tenants for 331 Watertown St, Newton MA

Possible residents contact details

Person Name Phone Number Additional Info
Anahi Mesrobian
617-795-****
Anahit Nesrobian
617-795-****
Ann M Spellman Age: 88

Businesses

Organization Phone Number Additional Info
International Brotherhood of Teamsters
617-965-****
Industry:
Labor Union

Possible Businesses

Organization Phone Number Additional Info
FLOPPYS INC
Type of Business:
Domestic Profit Corporation
Inactive:
19901231
TEAMSTERS LOCAL 127 SCHOLARSHIP FUND, INC
617-965-****
Industry:
Labor Union
Type of Business:
Nonprofit Corporation
Inactive:
20120618
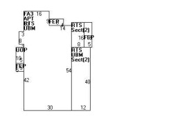
331 Watertown St, Newton MA  02458-1322 plot plan 331 Watertown St, Newton MA  02458-1322 floor plan 331 Watertown St, Newton MA  02458-1322 aerial view

Cost estimate history

YearAssessment
2016 $649,100
2015 $649,100
2014 $604,900
2013 $604,900
2012 $604,900
2011 $595,700
2010 $595,700
2009 $595,700
2008 $595,700
2007 $534,200
2006$496,900
2005$443,700
2004$381,000
2003$381,000
2002$381,000
2001$345,800
2000$345,800
1999$321,700
1998$311,300
1997$311,300
1996$311,300
1995$309,600
1994$324,600
1993$324,600
1992$374,900

Where is 331 Watertown St, Newton MA located on map?

Watertown St Fire Incident History

To date, we have no information about fire incidents in 2025
07 Apr 2010 Passenger vehicle fire
Property Use —
Street or road in commercial area
Area of Origin —
Engine area, running gear, wheel area
First Ignition —
Flammable liquid/gas - in/from engine or burner
Heat Source —
Arcing
28 Mar 2010 Passenger vehicle fire
Property Use —
Residential street, road or residential driveway
Area of Origin —
Engine area, running gear, wheel area
First Ignition —
Multiple items first ignited
Heat Source —
Heat from powered equipment, other
29 Dec 2008 Fuel burner/boiler malfunction, fire confined
Property Use —
1 or 2 family dwelling
Area of Origin —
Heating room or area, water heater area
First Ignition —
Atomized liquid, vaporized liquid, aerosol.
Heat Source —
Heat from powered equipment, other
03 Sep 2008 Natural vegetation fire, other
Property Use —
Street or road in commercial area
Area of Origin —
Outside area, other
Heat Source —
Hot or smoldering object, other

View more

Watertown St Incidents registered in FEMA
(Federal Emergency Management Agency)

To date, we have no information about incidents registered in FEMA in 2025
11 Sep 2011 Carbon monoxide incident
Property Use —
1 or 2 family dwelling
24 Jan 2011 Overheated motor
Property Use —
General retail, other
26 Oct 2010 Arcing, shorted electrical equipment
Property Use —
Multifamily dwellings
18 Oct 2010 Gasoline or other flammable liquid spill
Property Use —
Vehicle parking area

View more

Properties Nearby

Street AddressResidens/Landlords
 

FAQ about the house at 331 Watertown St, Newton, MA


NOTICE: You may not use RadioAwards or the information it provides to make decisions about employment, credit, housing or any other purpose that would require Fair Credit Reporting Act (FCRA) compliance. RadioAwards is not a Consumer Reporting Agency (CRA) as defined by the FCRA and does not provide consumer reports.