32 Barbara Rd, Newton MA  02465-1103 exterior

32 Barbara Rd Newton, MA 02465 / 1103

Residence for Single Family

(UPDATED: 09/04/2025)
  • 4 Beds
  • 2 Baths
  • 2.636 square feet
Property Report

Information about property on 32 Barbara Rd, Newton MA, 02465-1103. Find out owner contacts, building history, price, neighborhood at Homemetry Address Directory.

Property Details

A single-family residence at 32 Barbara Road, Newton, MA.

Facts

  • Built in 1950
  • Property use Single Family
  • Lot size 7,165 sqft
  • Effective area 2,252 sqft
  • Gross building area 2,636 sqft
  • Building type Residential
  • Rooms 6
  • Bedrooms 4
  • Bathrooms 2
  • Stories 1,5
  • Exterior condition Average
  • Trim None
  • Foundation type Conc Block
  • Roof material Asphalt Shingl
  • Fuel type Gas
  • Fireplaces 1
  • Frontage 70 feet
  • Basement area 768 sqft
  • Enclosed porch area 14 sqft
  • Attached garage area 220 sqft
  • Heating & Cooling
  • Heat type Hot Wtr Radiat
  • Exterior Home Features
  • Exterior walls Wood Shingle
  • Roof type Gable

Features

  • Kitchen quality: Above Average

Householders and Tenants for 32 Barbara Rd, Newton MA

Possible residents contact details

Person Name Phone Number Additional Info
BARBARA ROAD 1984 NOMINEE TRUST /S TR
B Kong
617-630-****
Bianca Kong
Deena Z Freed Age: 48
James R Tr Kingsbury
Prakash Rao
617-916-****
Residential status:
Homeowner
Shantha Rao
617-916-****
Residential status:
Homeowner
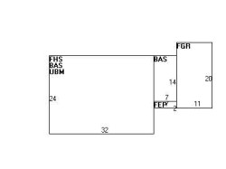
32 Barbara Rd, Newton MA  02465-1103 plot plan 32 Barbara Rd, Newton MA  02465-1103 floor plan 32 Barbara Rd, Newton MA  02465-1103 aerial view

Purchase History

DateEventPriceSourceAgents
04/12/2010 Sold $455,000 Public records
03/24/1997 Sold $238,000 Public records

Cost estimate history

YearAssessment
2016 $474,200
2015 $443,200
2014 $421,800
2013 $421,800
2012 $421,800
2011 $429,800
2010 $438,600
2009 $436,800
2008 $436,800
2007 $439,100
2006$426,300
2005$406,000
2004$363,700
2003$324,700
2002$324,700
2001$278,500
2000$254,300
1999$231,400
1998$202,300
1997$191,800
1996$182,700
1995$171,200
1994$171,200
1993$171,200
1992$176,800

Where is 32 Barbara Rd, Newton MA located on map?

Market Activities

To date, we have no information about market activities in 2025
Oct 2016 Recent Rent
32 Barbara Rd
Price history :
  • 1250 sqft
  • 4 beds
  • 2 baths

Classic Cape Style Single Family home in West Newton that is larger than it looks from the...

View more

Building Permits

To date, we have no information about building permits in 2025
Jan 29, 2013
Description: Strip and re-roof, no structural work
  • Valuation: $785,200
  • Fee: $146.05 paid to City of Newton, Massachusetts
  • Parcel #: 34039 0004
  • Permit #: 13010691

Properties Nearby

Street Address Residens/Landlords
 

FAQ about the house at 32 Barbara Rd, Newton, MA


NOTICE: You may not use RadioAwards or the information it provides to make decisions about employment, credit, housing or any other purpose that would require Fair Credit Reporting Act (FCRA) compliance. RadioAwards is not a Consumer Reporting Agency (CRA) as defined by the FCRA and does not provide consumer reports.