30 Sheridan St, Newton MA  02465-1038 exterior

30 Sheridan St Newton, MA 02465 / 1038

Residence for Single Family

(UPDATED: 09/16/2025)
  • 3 Beds
  • 2 Baths
  • 3.120 square feet
Property Report

Information about property on 30 Sheridan St, Newton MA, 02465-1038. Find out owner contacts, building history, price, neighborhood at Homemetry Address Directory.

Property Details

This property with 2,508 square feet of effective area on 0,22 acres was put up in 1955.

Facts

  • Built in 1955
  • Property use Single Family
  • Lot size 9,796 sqft
  • Effective area 2,508 sqft
  • Gross building area 3,120 sqft
  • Building type Residential
  • Rooms 6
  • Bedrooms 3
  • Bathrooms 2
  • Stories 1,75
  • Exterior condition Average
  • Trim None
  • Foundation type Concrete
  • Roof material Asphalt Shingl
  • Fuel type Oil
  • Fireplaces 1
  • Frontage 110 feet
  • Basement area 1,032 sqft
  • Finished basement area 408 sqft
  • Attached garage area 240 sqft
  • Heating & Cooling
  • Heat type Hot Water
  • Exterior Home Features
  • Exterior walls Vinyl Siding
  • Roof type Gable

Features

  • Kitchen quality: Above Average
  • Interior condition: Good

Householders and Tenants for 30 Sheridan St, Newton MA

Possible residents contact details

Person Name Phone Number Additional Info
ANDERSON PHILIP H &UX &AL
David N Baldwin Age: 59
617-795-****
Eric L Baldwin Age: 57
617-795-****
Isabelle P Thacker Age: 59
617-796-****
Residential status:
Homeowner
James C Sellman Age: 68
617-641-****
Residential status:
Homeowner
Jeanne M Baldwin
617-795-****
John Stanley Ehlinger Age: 56
617-785-****
Residential status:
Renter
Job:
Food Preparation and Serving Related Occupations
LEBLANC ROGER J &UX &AL
Linda M Hamel Age: 67
Residential status:
Homeowner
Job:
Legal Professional
Penelope O West
617-795-****
Philip H Anderson
508-420-****
Phyllis A Anderson
Phyllis M Leblanc
Strom C Thacker Age: 59
617-796-****
THACKER ISABELLE PAINE
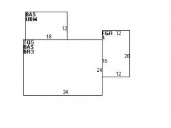
30 Sheridan St, Newton MA  02465-1038 plot plan 30 Sheridan St, Newton MA  02465-1038 floor plan 30 Sheridan St, Newton MA  02465-1038 aerial view

Purchase History

DateEventPriceSourceAgents
07/19/2005 Sold $612,000 Public records
09/05/1996 Sold $250,000 Public records

Cost estimate history

YearAssessment
2016 $627,700
2015 $586,600
2014 $555,800
2013 $555,800
2012 $555,800
2011 $565,300
2010 $576,800
2009 $588,600
2008 $588,600
2007 $567,000
2006$500,500
2005$476,700
2004$424,100
2003$378,700
2002$378,700
2001$325,300
2000$297,100
1999$270,300
1998$249,800
1997$236,800
1996$225,500
1995$195,400
1994$195,400
1993$195,400
1992$203,100

Where is 30 Sheridan St, Newton MA located on map?

Sheridan St Incidents registered in FEMA
(Federal Emergency Management Agency)

To date, we have no information about incidents registered in FEMA in 2025
25 Oct 2003 Water or steam leak
Property Use —
1 or 2 family dwelling

Properties Nearby

Street AddressResidens/Landlords
15 Sheridan St, Newton, MA 02465-1035
Single Family
  • 3 beds
  • 2.5 baths
  • 3,303 sqft
  • Built in 1900
15 SHERIDAN STREET REALTY TRUST, Ruth E Morris
23 Sheridan St, Newton, MA 02465-1035
Single Family
  • 3 beds
  • 3 baths
  • 3,620 sqft
  • Built in 1967
CHEN JIAN AN &UX, YU LI ZHEN &AL
24 Sheridan St, Newton, MA 02465-1038
Single Family
  • 3 beds
  • 2 baths
  • 2,592 sqft
  • Built in 1947
KING FAMILY NOMINEE TRUST, Phyllis M King
31 Sheridan St, Newton, MA 02465-1035
Single Family
  • 5 beds
  • 1.5 baths
  • 3,419 sqft
  • Built in 1913
Alba Depace, Antonio Depace
 

FAQ about the house at 30 Sheridan St, Newton, MA


NOTICE: You may not use RadioAwards or the information it provides to make decisions about employment, credit, housing or any other purpose that would require Fair Credit Reporting Act (FCRA) compliance. RadioAwards is not a Consumer Reporting Agency (CRA) as defined by the FCRA and does not provide consumer reports.