30 Hargrave Cir, Newton MA  02461-1108 exterior

30 Hargrave Cir Newton, MA 02461 / 1108

Residence for Single Family

(UPDATED: 08/10/2025)
  • 4 Beds
  • 10.036 square feet
Property Report

Information about property on 30 Hargrave Cir, Newton MA, 02461-1108. Find out owner contacts, building history, price, neighborhood at Homemetry Address Directory.

Property Details

At 30 Hargrave Cir, Newton, MA based an estate.

Facts

  • Built in 1976
  • Property use Housing Authority
  • Lot size 10,036 sqft
  • Building type Residential
  • Rooms 8
  • Bedrooms 4
  • Stories 2
  • Exterior condition Good
  • Trim None
  • Foundation type Slab
  • Roof material Asphalt Shingl
  • Fuel type Electric
  • Frontage 120 feet
  • Heating & Cooling
  • Heat type Heat Pump
  • Exterior Home Features
  • Exterior walls Board/Batten
  • Roof type Gable

Features

  • Kitchen quality: Average

Householders and Tenants for 30 Hargrave Cir, Newton MA

Possible residents contact details

Person Name Phone Number Additional Info
Abu M Parvez
857-234-****
Barbie Cornelio
617-964-****
Carlos M Gonzalez Age: 70
617-630-****
Linda Gonalez
Residential status:
Renter
Job:
Building and Grounds Cleaning and Maintenance Occupations
Maria Olivero
617-467-****
Yasmin Chowdhury
617-969-****
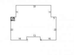
30 Hargrave Cir, Newton MA  02461-1108 plot plan 30 Hargrave Cir, Newton MA  02461-1108 floor plan 30 Hargrave Cir, Newton MA  02461-1108 aerial view

Cost estimate history

YearAssessment
2016 $638,100
2015 $638,100
2014 $613,600
2013 $613,600
2012 $613,600
2011 $712,900
2010 $712,900
2009 $712,900
2008 $712,900

Where is 30 Hargrave Cir, Newton MA located on map?

Properties Nearby

Street AddressResidens/Landlords
 

FAQ about the house at 30 Hargrave Cir, Newton, MA


NOTICE: You may not use RadioAwards or the information it provides to make decisions about employment, credit, housing or any other purpose that would require Fair Credit Reporting Act (FCRA) compliance. RadioAwards is not a Consumer Reporting Agency (CRA) as defined by the FCRA and does not provide consumer reports.