30 Burr Rd, Newton MA  02459-1404 exterior

30 Burr Rd Newton, MA 02459 / 1404

(UPDATED: 09/16/2025)
Property Report

Information about property on 30 Burr Rd, Newton MA, 02459-1404. Find out owner contacts, building history, price, neighborhood at Homemetry Address Directory.

Property Details

This property with 3,273 square feet of effective area on 0,22 acres was put up in 1925.

Facts

  • Built in 1925
  • Property use Single Family
  • Lot size 9,478 sqft
  • Effective area 3,273 sqft
  • Building type Residential
  • Rooms 8
  • Bedrooms 4
  • Stories 2
  • Exterior condition Average
  • Trim None
  • Foundation type Concrete
  • Roof material Asphalt Shingl
  • Fuel type Oil
  • Air conditioning Central
  • Frontage 72 feet
  • Basement area 1,091 sqft
  • Detached garage area 369 sqft
  • Heating & Cooling
  • Heat type Hot Wtr Radiat
  • Exterior Home Features
  • Exterior walls Wood Shingle
  • Roof type Hip

Features

  • Kitchen quality: Below Average
  • Bath quality: Above Average

Householders and Tenants for 30 Burr Rd, Newton MA

Possible residents contact details

Person Name Phone Number Additional Info
Bill C Rundle Age: 73 Apt # A
Leah V Seliber
Louise W Christian Age: 88
617-527-****
Residential status:
Homeowner
Robert C Azrak
617-527-****
Residential status:
Homeowner
Job:
Protective Service Occupations
William C Rundle Age: 61
Residential status:
Homeowner

Units - Who lives at 30 Burr Rd, Newton MA

#ABill C Rundle 02459-1404
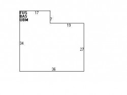
30 Burr Rd, Newton MA  02459-1404 plot plan 30 Burr Rd, Newton MA  02459-1404 floor plan 30 Burr Rd, Newton MA  02459-1404 aerial view

Cost estimate history

YearAssessment
2016 $812,700
2015 $759,500
2014 $722,900
2013 $722,900
2012 $722,900
2011 $725,400
2010 $740,200
2009 $755,300
2008 $755,300
2007 $785,200
2006$762,300
2005$726,000
2004$667,200
2003$595,700
2002$595,700
2001$536,300
2000$469,800
1999$407,100
1998$364,900
1997$334,800
1996$318,900
1995$316,700
1994$301,600
1993$301,600
1992$313,100

Where is 30 Burr Rd, Newton MA located on map?

Properties Nearby

Street AddressResidens/Landlords
 

FAQ about the house at 30 Burr Rd, Newton, MA


NOTICE: You may not use RadioAwards or the information it provides to make decisions about employment, credit, housing or any other purpose that would require Fair Credit Reporting Act (FCRA) compliance. RadioAwards is not a Consumer Reporting Agency (CRA) as defined by the FCRA and does not provide consumer reports.