30 Anthony Cir Newton, MA 02460 / 1110

Residence for Single Family

(UPDATED: 08/05/2025)
  • 3 Beds
  • 2 Baths
  • 3.273 square feet
Property Report

Information about property on 30 Anthony Cir, Newton MA, 02460-1110. Find out owner contacts, building history, price, neighborhood at Homemetry Address Directory.

Property Details

This property with 2,938 square feet of effective area on 0,22 acres was put up in 1959.

Facts

  • Built in 1959
  • Property use Single Family
  • Lot size 9,542 sqft
  • Effective area 2,938 sqft
  • Gross building area 3,273 sqft
  • Building type Residential
  • Rooms 5
  • Bedrooms 3
  • Bathrooms 2
  • Stories 1
  • Exterior condition Average
  • Trim Full Wall
  • Foundation type Concrete
  • Roof material Asphalt Shingl
  • Fuel type Oil
  • Air conditioning None
  • Frontage 95 feet
  • Basement area 1,341 sqft
  • Finished basement area 1,006 sqft
  • Porch area 108 sqft
  • Attached garage area 483 sqft
  • Heating & Cooling
  • Heat type Hot Water
  • Exterior Home Features
  • Exterior walls Wood Shingle
  • Roof type Gable

Features

  • Bath quality: Above Average

Householders and Tenants for 30 Anthony Cir, Newton MA

Possible residents contact details

Person Name Phone Number Additional Info
Audrey D Diamond Age: 71
617-916-****
Audrey Goldstein Age: 70
Residential status:
Homeowner
Job:
Professional/Technical
C Shirley
Faith S Alexander
Hermine M Sammut
Lega A Tr Medcalf
MEDCALF LEGA ANN
Mark A Diamond Age: 71
617-916-****
Residential status:
Homeowner
Job:
Professional/Technical
SAMMUT FAMILY TRUST
SAMMUT FAMILY TRUST S TR
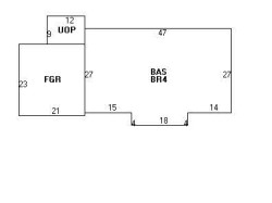
30 Anthony Cir, Newton MA  02460-1110 plot plan 30 Anthony Cir, Newton MA  02460-1110 floor plan 30 Anthony Cir, Newton MA  02460-1110 aerial view

Purchase History

DateEventPriceSourceAgents
03/31/2006 Sold $455,000 Public records

Cost estimate history

YearAssessment
2016 $559,500
2015 $522,900
2014 $496,800
2013 $438,900
2012 $438,900
2011 $444,800
2010 $453,900
2009 $463,200
2008 $463,200
2007 $477,800
2006$491,700
2005$468,300
2004$428,300
2003$382,400
2002$382,400
2001$340,900
2000$311,300
1999$283,300
1998$252,700
1997$238,400
1996$227,000
1995$217,300
1994$213,000
1993$213,000
1992$226,300

Where is 30 Anthony Cir, Newton MA located on map?

Properties Nearby

Street AddressResidens/Landlords
3 Anthony Cir, Newton, MA 02460-1109
Single Family
  • 3 beds
  • 2.5 baths
  • 2,790 sqft
  • Built in 1965
CENTOLA REVOCABLE TRUST, CENTOLA REVOCABLE TRUST S TRS
 

FAQ about the house at 30 Anthony Cir, Newton, MA


NOTICE: You may not use RadioAwards or the information it provides to make decisions about employment, credit, housing or any other purpose that would require Fair Credit Reporting Act (FCRA) compliance. RadioAwards is not a Consumer Reporting Agency (CRA) as defined by the FCRA and does not provide consumer reports.