29 Anthony Cir, Newton MA  02460-1109 exterior

29 Anthony Cir Newton, MA 02460 / 1109

Residence for Single Family

(UPDATED: 07/08/2025)
  • 3 Beds
  • 1 Baths
  • 2.496 square feet
Property Report

Information about property on 29 Anthony Cir, Newton MA, 02460-1109. Find out owner contacts, building history, price, neighborhood at Homemetry Address Directory.

Property Details

As is shown in our records this property is placed at 29 Anthony Cir, Newton, MA.

Facts

  • Built in 1964
  • Property use Single Family
  • Lot size 8,307 sqft
  • Effective area 2,496 sqft
  • Building type Residential
  • Rooms 7
  • Bedrooms 3
  • Stories 1
  • Exterior condition Average
  • Trim Half Wall
  • Foundation type Concrete
  • Roof material Asphalt Shingl
  • Fuel type Gas
  • Air conditioning None
  • Fireplaces 2
  • Frontage 175 feet
  • Basement area 1,152 sqft
  • Finished basement area 200 sqft
  • Deck area 144 sqft
  • Basement garages 2
  • Heating & Cooling
  • Heat type Hot Water
  • Exterior Home Features
  • Exterior walls Wood Shingle
  • Roof type Gable

Householders and Tenants for 29 Anthony Cir, Newton MA

Possible residents contact details

Person Name Phone Number Additional Info
Haig V Vartanian Age: 98
617-969-****
Jingyuan Zhang
Nancy C Vartanian Age: 68
617-244-****
Sonia J Vartanian Age: 96
617-244-****
Xin Wang
YARTANIAN HAIG
YARTANIAN SONIA J
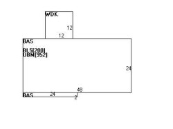
29 Anthony Cir, Newton MA  02460-1109 plot plan 29 Anthony Cir, Newton MA  02460-1109 floor plan 29 Anthony Cir, Newton MA  02460-1109 aerial view

Cost estimate history

YearAssessment
2016 $506,900
2015 $473,700
2014 $449,700
2013 $449,700
2012 $449,700
2011 $448,000
2010 $457,100
2009 $466,400
2008 $466,400
2007 $479,800
2006$465,800
2005$443,600
2004$410,900
2003$366,900
2002$366,900
2001$320,100
2000$292,300
1999$266,000
1998$247,200
1997$233,200
1996$222,100
1995$195,700
1994$195,700
1993$195,700
1992$210,300

Where is 29 Anthony Cir, Newton MA located on map?

Properties Nearby

Street AddressResidens/Landlords
3 Anthony Cir, Newton, MA 02460-1109
Single Family
  • 3 beds
  • 2.5 baths
  • 2,790 sqft
  • Built in 1965
CENTOLA REVOCABLE TRUST, CENTOLA REVOCABLE TRUST S TRS
 

FAQ about the house at 29 Anthony Cir, Newton, MA


NOTICE: You may not use RadioAwards or the information it provides to make decisions about employment, credit, housing or any other purpose that would require Fair Credit Reporting Act (FCRA) compliance. RadioAwards is not a Consumer Reporting Agency (CRA) as defined by the FCRA and does not provide consumer reports.