28 Curve St, Newton MA  02465-2207 exterior

28 Curve St Newton, MA 02465 / 2207

Residence for Single Family

(UPDATED: 08/18/2025)
  • 3 Beds
  • 1 Baths
  • 2.357 square feet
Property Report

Information about property on 28 Curve St, Newton MA, 02465-2207. Find out owner contacts, building history, price, neighborhood at Homemetry Address Directory.

Property Details

At 28 Curve Street, Newton, Massachusetts based a property, which was built in 1880.

Facts

  • Built in 1880
  • Property use Single Family
  • Lot size 6,702 sqft
  • Effective area 2,357 sqft
  • Building type Residential
  • Rooms 6
  • Bedrooms 3
  • Bathrooms 1
  • Stories 2
  • Exterior condition Average
  • Trim None
  • Foundation type Brick/Fldstone
  • Roof material Asphalt Shingl
  • Fuel type Oil
  • Frontage 60 feet
  • Basement area 591 sqft
  • Shed area 64 sqft
  • Porch area 210 sqft
  • Deck area 280 sqft
  • Heating & Cooling
  • Heat type Forced Air-Duc
  • Exterior Home Features
  • Exterior walls Wood Shingle
  • Roof type Gable

Features

  • Kitchen quality: Below Average
  • Bath quality: Poor

Householders and Tenants for 28 Curve St, Newton MA

Possible residents contact details

Person Name Phone Number Additional Info
CARTER-DIXON ROSALIE
Kwame Dixon
Leslie E Lewis Age: 74
617-332-****
Residential status:
Homeowner
Job:
Sales/Service
Oscar J Carter Age: 114
617-244-****
Residential status:
Homeowner
Job:
Production Occupations
Rosalie G Carter Age: 93
617-244-****
Rosalie G Carter-Dixon Age: 93
617-244-****
Sletha Carter Age: 111
617-244-****
Residential status:
Homeowner
Job:
Production Occupations
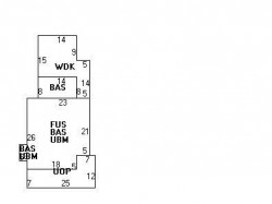
28 Curve St, Newton MA  02465-2207 plot plan 28 Curve St, Newton MA  02465-2207 floor plan 28 Curve St, Newton MA  02465-2207 aerial view

Cost estimate history

YearAssessment
2016 $417,100
2015 $389,800
2014 $373,300
2013 $319,600
2012 $319,600
2011 $315,700
2010 $322,100
2009 $328,700
2008 $328,700
2007 $343,100
2006$333,100
2005$317,200
2004$285,800
2003$255,200
2002$255,200
2001$212,600
2000$194,200
1999$176,700
1998$160,500
1997$155,100
1996$147,700
1995$124,900
1994$124,900
1993$124,900
1992$147,000

Where is 28 Curve St, Newton MA located on map?

Properties Nearby

Street AddressResidens/Landlords
11 Curve St, Newton, MA 02465-2206
Single Family
  • 2 beds
  • 1 bath
  • 2,269 sqft
  • Built in 1880
Barbara Revaleon, 11 CURVE STREET REALTY TRUST
12 Curve St, Newton, MA 02465-2207
Single Family
  • 3 beds
  • 1.5 baths
  • 2,643 sqft
  • Built in 1880
MYRTLE BAPTIST CHURCH OF WEST NEWTON, Samuel A Turner
 

FAQ about the house at 28 Curve St, Newton, MA


NOTICE: You may not use RadioAwards or the information it provides to make decisions about employment, credit, housing or any other purpose that would require Fair Credit Reporting Act (FCRA) compliance. RadioAwards is not a Consumer Reporting Agency (CRA) as defined by the FCRA and does not provide consumer reports.