Cost estimate history
| Year | Assessment | ||
|---|---|---|---|
| 2016 | $1,024,200 | ||
| 2015 | $957,200 | ||
| 2014 | $902,400 | ||
| 2013 | $902,400 | ||
| 2012 | $902,400 | ||
| 2011 | $910,700 | ||
| 2010 | $1,012,500 | ||
| 2009 | $948,300 | ||
| 2008 | $1,048,700 | ||
| 2007 | $1,024,300 | ||
| 2006 | $994,500 | ||
| 2005 | $947,100 | ||
| 2004 | $839,000 | ||
| 2003 | $749,100 | ||
| 2002 | $749,100 | ||
| 2001 | $590,500 | ||
| 2000 | $562,400 | ||
| 1999 | $511,700 | ||
| 1998 | $452,000 | ||
| 1997 | $436,700 | ||
| 1996 | $415,900 | ||
| 1995 | $453,200 | ||
| 1994 | $431,600 | ||
| 1993 | $366,700 | ||
| 1992 | $450,400 |
Building Permits
To date, we have no information about building permits in 2025
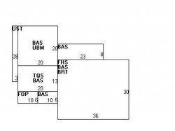
Mar 31, 2006
Description: Repair:repair roof boards on front porch & re-roof
- Valuation: $150,000
- Permit #: 306229-010418
Brookline St Fire Incident History
To date, we have no information about fire incidents in 2025
20 Mar 2009
Building fires
Property Use —
1 or 2 family dwelling
Area of Origin —
Cooking area, kitchen
First Ignition —
Cooking materials, including edible materials
Heat Source —
Spark, ember or flame from operating equipment
Brookline St Incidents registered in FEMA
(Federal Emergency Management Agency)
To date, we have no information about incidents registered in FEMA in 2025
06 Jun 2013
Gasoline or other flammable liquid spill
Property Use —
Residential street, road or residential driveway
30 Oct 2011
Power line down
Property Use —
Residential street, road or residential driveway
29 Sep 2011
Power line down
Property Use —
Residential street, road or residential driveway
28 Aug 2011
Power line down
Property Use —
Residential street, road or residential driveway
Properties Nearby
| Street Address | Residens/Landlords |
|---|


