26 Mosman St, Newton MA  02465-1303 exterior

26 Mosman St Newton, MA 02465 / 1303

Residence for Single Family

(UPDATED: 07/30/2025)
  • 3 Beds
  • 2 Baths
  • 1.750 square feet
Property Report

Information about property on 26 Mosman St, Newton MA, 02465-1303. Find out owner contacts, building history, price, neighborhood at Homemetry Address Directory.

Property Details

As is shown in our records this property is situated at 26 Mosman St, Newton, MA.

Facts

  • Built in 1954
  • Property use Single Family
  • Lot size 10,970 sqft
  • Effective area 1,750 sqft
  • Building type Residential
  • Rooms 7
  • Bedrooms 3
  • Bathrooms 2
  • Exterior condition Average
  • Trim Half Wall
  • Foundation type Slab
  • Roof material Asphalt Shingl
  • Fuel type Oil
  • Air conditioning None
  • Frontage 112 feet
  • Enclosed porch area 168 sqft
  • Heating & Cooling
  • Heat type Hot Wtr Radiat
  • Exterior Home Features
  • Exterior walls Vinyl Siding
  • Roof type Gable

Features

  • Kitchen quality: Below Average

Householders and Tenants for 26 Mosman St, Newton MA

Possible residents contact details

Person Name Phone Number Additional Info
Daniel A Laufer
617-969-****
Katharine K Laufer Age: 79
617-969-****
Residential status:
Homeowner
Job:
Construction and Extraction Occupations
Katherine K Laufer Age: 79
617-969-****
Matthew I Laufer
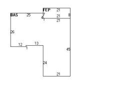
26 Mosman St, Newton MA  02465-1303 plot plan 26 Mosman St, Newton MA  02465-1303 floor plan 26 Mosman St, Newton MA  02465-1303 aerial view

Cost estimate history

YearAssessment
2016 $482,800
2015 $451,200
2014 $424,800
2013 $424,800
2012 $424,800
2011 $453,300
2010 $462,500
2009 $471,900
2008 $471,900
2007 $491,800
2006$477,500
2005$454,800
2004$410,300
2003$366,300
2002$366,300
2001$305,100
2000$278,600
1999$253,500
1998$226,300
1997$213,500
1996$203,300
1995$197,600
1994$197,600
1993$197,600
1992$210,100

Where is 26 Mosman St, Newton MA located on map?

Properties Nearby

Street AddressResidens/Landlords
 

FAQ about the house at 26 Mosman St, Newton, MA


NOTICE: You may not use RadioAwards or the information it provides to make decisions about employment, credit, housing or any other purpose that would require Fair Credit Reporting Act (FCRA) compliance. RadioAwards is not a Consumer Reporting Agency (CRA) as defined by the FCRA and does not provide consumer reports.