26 Hollis St, Newton MA  02458-2010 exterior

26 Hollis St Newton, MA 02458 / 2010

(UPDATED: 07/21/2025)
Property Report

Information about property on 26 Hollis St, Newton MA, 02458-2010. Find out owner contacts, building history, price, neighborhood at Homemetry Address Directory.

Property Details

This is a single-family possession, which is situated at 26 Hollis Street, Newton, MA.

Facts

  • Built in 1905
  • Property use Single Family
  • Lot size 6,078 sqft
  • Effective area 3,037 sqft
  • Gross building area 3,442 sqft
  • Building type Residential
  • Rooms 7
  • Bedrooms 4
  • Bathrooms 1
  • Stories 2
  • Exterior condition Average
  • Trim None
  • Foundation type Concrete
  • Roof material Asphalt Shingl
  • Fuel type Oil
  • Frontage 70 feet
  • Unfinished attic area 405 sqft
  • Basement area 834 sqft
  • Enclosed porch area 136 sqft
  • Detached garage area 400 sqft
  • Heating & Cooling
  • Heat type Steam
  • Exterior Home Features
  • Exterior walls Wood Shingle
  • Roof type Gable

Householders and Tenants for 26 Hollis St, Newton MA

Possible residents contact details

Person Name Phone Number Additional Info
Austin O Uhl
COFFMAN BERTHA REED
COFFMAN BERTHA REED EST
Catherine F Uhl
Edward R Sanner
Eliz W Latona Age: 114
George Coffman
Jean L Acheson Age: 87
617-244-****
Julie E Acheson Age: 60 Apt # 1
617-244-****
Residential status:
Homeowner
Job:
Food Preparation and Serving Related Occupations
Laura L Acheson Age: 62
617-244-****
Residential status:
Homeowner
Job:
Food Preparation and Serving Related Occupations
Laura L Capello
Laura L Poulakis Age: 62
617-244-****
Raymond J Acheson Age: 89
617-244-****
Residential status:
Homeowner
Job:
Food Preparation and Serving Related Occupations

Units - Who lives at 26 Hollis St, Newton MA

#1Julie E Acheson 02458-2010
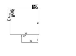
26 Hollis St, Newton MA  02458-2010 plot plan 26 Hollis St, Newton MA  02458-2010 floor plan 26 Hollis St, Newton MA  02458-2010 aerial view

Cost estimate history

YearAssessment
2016 $592,000
2015 $553,300
2014 $530,100
2013 $530,100
2012 $530,100
2011 $527,000
2010 $537,800
2009 $548,800
2008 $548,800
2007 $570,800
2006$554,200
2005$527,800
2004$486,000
2003$433,900
2002$433,900
2001$359,100
2000$327,900
1999$298,400
1998$273,200
1997$254,100
1996$242,000
1995$223,400
1994$223,400
1993$223,400
1992$230,000

Where is 26 Hollis St, Newton MA located on map?

Properties Nearby

Street AddressResidens/Landlords
 

FAQ about the house at 26 Hollis St, Newton, MA


NOTICE: You may not use RadioAwards or the information it provides to make decisions about employment, credit, housing or any other purpose that would require Fair Credit Reporting Act (FCRA) compliance. RadioAwards is not a Consumer Reporting Agency (CRA) as defined by the FCRA and does not provide consumer reports.