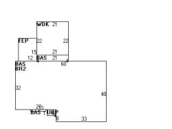
Cost estimate history
| Year | Assessment | ||
|---|---|---|---|
| 2016 | $965,600 | ||
| 2015 | $902,400 | ||
| 2014 | $852,300 | ||
| 2013 | $852,300 | ||
| 2012 | $852,300 | ||
| 2011 | $824,300 | ||
| 2010 | $841,100 | ||
| 2009 | $858,300 | ||
| 2008 | $858,300 | ||
| 2007 | $878,200 | ||
| 2006 | $852,600 | ||
| 2005 | $812,000 | ||
| 2004 | $729,600 | ||
| 2003 | $651,400 | ||
| 2002 | $651,400 | ||
| 2001 | $602,300 | ||
| 2000 | $496,300 | ||
| 1999 | $397,800 | ||
| 1998 | $375,400 | ||
| 1997 | $368,000 | ||
| 1996 | $350,500 | ||
| 1995 | $340,900 | ||
| 1994 | $318,600 | ||
| 1993 | $318,600 | ||
| 1992 | $356,500 |
Building Permits
To date, we have no information about building permits in 2025
Oct 7, 2015
Description: Rip up and replace existing driveway
- Valuation: $2,000,000
- Fee: $400.00 paid to City of Newton, Massachusetts
- Parcel #: 72030 0001A
- Permit #: 15100247
Waverley Ave Fire Incident History
To date, we have no information about fire incidents in 2025
20 Nov 2011
Fuel burner/boiler malfunction, fire confined
21 Feb 2011
Building fires
Property Use —
1 or 2 family dwelling
Area of Origin —
Bedroom - < 5 persons; included are jail or prison
Waverley Ave Incidents registered in FEMA
(Federal Emergency Management Agency)
To date, we have no information about incidents registered in FEMA in 2025
02 Jan 2014
Overheated motor
Property Use —
1 or 2 family dwelling
26 Dec 2011
Fuel burner/boiler malfunction, fire confined
Property Use —
1 or 2 family dwelling
17 Dec 2009
Overheated motor
Property Use —
1 or 2 family dwelling
27 Feb 2009
Vehicle accident, general cleanup
Property Use —
Residential street, road or residential driveway
Properties Nearby
| Street Address | Residens/Landlords | |
|---|---|---|
22 Waverley Ave, Newton, MA 02458-2104 Multi-Family Home
|
Ning An, Sean J Leary | |
27 Waverley Ave, Newton, MA 02458-2103 Two Family
|
BROOKLINE SOLAR ELECTRIC, INC, S & S INTERNET VENTURES, LLC |


