25 Melville Ave, Newton MA  02460-1223 exterior

25 Melville Ave Newton, MA 02460 / 1223

Residence for Single Family

(UPDATED: 08/09/2025)
  • 2 Beds
  • 2 Baths
  • 1.873 square feet
Property Report

Information about property on 25 Melville Ave, Newton MA, 02460-1223. Find out owner contacts, building history, price, neighborhood at Homemetry Address Directory.

Property Details

This property with near seventeen hundred square feet of effective area on 0,11 acres was erected in the thirties.

Facts

  • Built in 1930
  • Property use Single Family
  • Lot size 5,000 sqft
  • Effective area 1,729 sqft
  • Gross building area 1,873 sqft
  • Building type Residential
  • Rooms 5
  • Bedrooms 2
  • Bathrooms 1
  • Stories 1,75
  • Exterior condition Average
  • Trim None
  • Foundation type Concrete
  • Roof material Asphalt Shingl
  • Fuel type Oil
  • Frontage 50 feet
  • Basement area 586 sqft
  • Enclosed porch area 126 sqft
  • Detached garage area 342 sqft
  • Heating & Cooling
  • Heat type Steam
  • Exterior Home Features
  • Exterior walls Vinyl Siding
  • Roof type Gable

Features

  • Interior condition: Good

Householders and Tenants for 25 Melville Ave, Newton MA

Possible residents contact details

Person Name Phone Number Additional Info
25 MELVILLE AVENUE FAMILY TRUST
A M Amaya
617-776-****
Andrew Healy
Carrie L Coleman Age: 52
Residential status:
Homeowner
Cynthia Pereira
617-332-****
Cynthia Pereya
617-244-****
Deborah S Hallett Age: 89
781-599-****
Jennifer Barisano
Joseph B Collins
LUPO ROBERT N TR IN BKCY TO
Laura Wolfe Age: 65
617-559-****
Michael E Boucher Age: 67
Monica Healy
Robert N Lupo
781-891-****
Roger A Smith Age: 52
Tracey F Mucci Age: 56
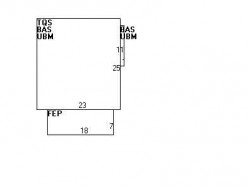
25 Melville Ave, Newton MA  02460-1223 plot plan 25 Melville Ave, Newton MA  02460-1223 floor plan 25 Melville Ave, Newton MA  02460-1223 aerial view

Purchase History

DateEventPriceSourceAgents
07/19/2011 Sold $347,000 Public records

Cost estimate history

YearAssessment
2016 $409,700
2015 $382,900
2014 $362,800
2013 $362,800
2012 $362,800
2011 $360,200
2010 $367,600
2009 $375,100
2008 $375,100
2007 $412,300
2006$400,300
2005$381,200
2004$305,000
2003$272,300
2002$272,300
2001$220,300
2000$201,200
1999$183,100
1998$164,100
1997$164,100
1996$156,300
1995$136,800
1994$142,500
1993$142,500
1992$148,900

Where is 25 Melville Ave, Newton MA located on map?

Properties Nearby

Street AddressResidens/Landlords
 

FAQ about the house at 25 Melville Ave, Newton, MA


NOTICE: You may not use RadioAwards or the information it provides to make decisions about employment, credit, housing or any other purpose that would require Fair Credit Reporting Act (FCRA) compliance. RadioAwards is not a Consumer Reporting Agency (CRA) as defined by the FCRA and does not provide consumer reports.