24 Smith Ave, Newton MA  02465-1554 exterior

24 Smith Ave Newton, MA 02465 / 1554

Residence for Single Family

(UPDATED: 08/18/2025)
  • 5 Beds
  • 3 Baths
  • 3.462 square feet
Property Report

Information about property on 24 Smith Ave, Newton MA, 02465-1554. Find out owner contacts, building history, price, neighborhood at Homemetry Address Directory.

Property Details

Constructed in 1930, this property has near thirty-three hundred square feet of effective area and sits on 0,44 acres.

Facts

  • Built in 1930
  • Property use Single Family
  • Lot size 19,240 sqft
  • Effective area 3,254 sqft
  • Gross building area 3,462 sqft
  • Building type Residential
  • Rooms 9
  • Bedrooms 5
  • Bathrooms 3
  • Stories 2
  • Exterior condition Average
  • Trim None
  • Foundation type Concrete
  • Roof material Asphalt Shingl
  • Fuel type Gas
  • Frontage 100 feet
  • Basement area 832 sqft
  • Finished basement area 624 sqft
  • Shed area 112 sqft
  • Porch area 35 sqft
  • Enclosed porch area 70 sqft
  • Swimming pool AVG ABV GRND
  • Deck area 386 sqft
  • Attached garage area 266 sqft
  • Heating & Cooling
  • Heat type Hot Wtr Radiat
  • Exterior Home Features
  • Exterior walls Brick/Masonry
  • Roof type Gable

Features

  • Kitchen quality: Above Average
  • Interior condition: Good

Householders and Tenants for 24 Smith Ave, Newton MA

Possible residents contact details

Person Name Phone Number Additional Info
Clair C Menelly
617-332-****
Claire C Menelly Age: 89
617-332-****
Frank Astone
617-244-****
Gaetana Astone Age: 120
617-244-****
Residential status:
Renter
Job:
Private Household Service Occupations
Henry E Menelly Age: 93
617-332-****
Jennifer R Menelly Age: 51
617-332-****
Mark E Menelly Age: 58
617-332-****
Pushkar Phatak
Sangeeta Benjwal
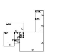
24 Smith Ave, Newton MA  02465-1554 plot plan 24 Smith Ave, Newton MA  02465-1554 floor plan 24 Smith Ave, Newton MA  02465-1554 aerial view

Purchase History

DateEventPriceSourceAgents
06/26/2013 Sold $740,000 Agent Submission John Lynch & Edward...

Cost estimate history

YearAssessment
2016 $770,000
2015 $719,600
2014 $681,200
2013 $624,900
2012 $624,900
2011 $632,700
2010 $645,600
2009 $658,800
2008 $658,800
2007 $655,100
2006$636,000
2005$605,700
2004$532,800
2003$475,700
2002$475,700
2001$401,000
2000$366,200
1999$333,200
1998$312,000
1997$295,700
1996$281,600
1995$275,000
1994$261,900
1993$261,900
1992$271,700

Where is 24 Smith Ave, Newton MA located on map?

Properties Nearby

Street AddressResidens/Landlords
11 Smith Ave, Newton, MA 02465-1543
Single Family
  • 3 beds
  • 2 baths
  • 3,135 sqft
  • Built in 1955
LOPEZ FELIX J III, LOPEZ FELIX J III &UX
19 Smith Ave, Newton, MA 02465-1543
Single Family
  • 3 beds
  • 1.5 baths
  • 2,700 sqft
  • Built in 1958
ASTONE EMANUELA R LIF EST, Carol P Astone
23 Smith Ave, Newton, MA 02465-1543
Single Family
  • 3 beds
  • 1 bath
  • 2,271 sqft
  • Built in 1900
Sharon Tapper, David I Tapper
 

FAQ about the house at 24 Smith Ave, Newton, MA


NOTICE: You may not use RadioAwards or the information it provides to make decisions about employment, credit, housing or any other purpose that would require Fair Credit Reporting Act (FCRA) compliance. RadioAwards is not a Consumer Reporting Agency (CRA) as defined by the FCRA and does not provide consumer reports.