24 Beverly Rd, Newton MA  02461-1113 exterior

24 Beverly Rd Newton, MA 02461 / 1113

Residence for Single Family

(UPDATED: 08/21/2025)
  • 4 Beds
  • 1 Baths
  • 3.798 square feet
Property Report

Information about property on 24 Beverly Rd, Newton MA, 02461-1113. Find out owner contacts, building history, price, neighborhood at Homemetry Address Directory.

Property Details

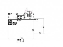
Constructed in 1923, this property has near thirty-four hundred square feet of effective area and sits on 0,14 acres.

Facts

  • Built in 1923
  • Property use Single Family
  • Lot size 6,120 sqft
  • Effective area 3,414 sqft
  • Gross building area 3,798 sqft
  • Building type Residential
  • Rooms 8
  • Bedrooms 4
  • Bathrooms 1
  • Stories 2
  • Exterior condition Average
  • Trim None
  • Foundation type Concrete
  • Roof material Asphalt Shingl
  • Fuel type Oil
  • Frontage 48 feet
  • Unfinished attic area 384 sqft
  • Basement area 921 sqft
  • Finished basement area 225 sqft
  • Enclosed porch area 147 sqft
  • Attached garage area 228 sqft
  • Heating & Cooling
  • Heat type Hot Wtr Radiat
  • Exterior Home Features
  • Exterior walls Wood Shingle
  • Roof type Gable

Features

  • Kitchen quality: Good

Householders and Tenants for 24 Beverly Rd, Newton MA

Possible residents contact details

Person Name Phone Number Additional Info
Ethan F Katz
617-964-****
Gerrold Katz Age: 77
734-834-****
Residential status:
Homeowner
Job:
Educator
Jerrold I Katz Age: 77
617-964-****
Margaret C Katz Age: 79
617-964-****
Residential status:
Homeowner
Job:
Educator
N Katz Age: 46
617-964-****
Nat S Katz Age: 46
Nathaniel S Katz Age: 46
617-964-****
24 Beverly Rd, Newton MA  02461-1113 plot plan 24 Beverly Rd, Newton MA  02461-1113 floor plan 24 Beverly Rd, Newton MA  02461-1113 aerial view

Cost estimate history

YearAssessment
2016 $667,500
2015 $623,800
2014 $596,000
2013 $596,000
2012 $596,000
2011 $584,500
2010 $596,400
2009 $608,600
2008 $608,600
2007 $653,800
2006$634,800
2005$604,600
2004$551,000
2003$492,000
2002$492,000
2001$433,300
2000$385,700
1999$322,800
1998$297,400
1997$272,800
1996$259,800
1995$239,900
1994$226,300
1993$226,300
1992$230,000

Where is 24 Beverly Rd, Newton MA located on map?

Properties Nearby

Street AddressResidens/Landlords
4 Beverly Rd, Newton, MA 02461-1113
Single Family
  • 3 beds
  • 2.5 baths
  • 2,853 sqft
  • Built in 1935
RICHARD P AMARNICK 2010 TRUST, Batsheva Tr Fenster
10 Beverly Rd, Newton, MA 02461-1113
Single Family
  • 4 beds
  • 1.5 baths
  • 2,520 sqft
  • Built in 1930
Lindsay Neagle, Betty B Neagle
17 Beverly Rd, Newton, MA 02461-1112
Single Family
  • 5 beds
  • 4.5 baths
  • 6,742 sqft
  • Built in 1964
Leslie S Deangelo, Richard A Deangelo
20 Beverly Rd, Newton, MA 02461-1113
Single Family
  • 3 beds
  • 2 baths
  • 2,947 sqft
  • Built in 1950
Wendy G Heywood, Stephen J Heywood
29 Beverly Rd, Newton, MA 02461-1112
Single Family
  • 4 beds
  • 1.5 baths
  • 4,256 sqft
  • Built in 1934
BARING-GOULD JONATHAN, BARING-GOULD MOLLY
30 Beverly Rd, Newton, MA 02461-1113
Single Family
  • 4 beds
  • 3 baths
  • 4,128 sqft
  • Built in 1920
Linda S Abrams, Joel M Abrams
33 Beverly Rd, Newton, MA 02461-1112
Single Family
  • 4 beds
  • 2 baths
  • 4,692 sqft
  • Built in 1938
COBAUGH AMY RADELL, COBAUGH CHRISTIAN WESSEL
36 Beverly Rd, Newton, MA 02461-1113
Single Family
  • 3 beds
  • 1.5 baths
  • 3,481 sqft
  • Built in 1938
ASUAJE-SOLON ANA Z &AL, Joel A Solon
39 Beverly Rd, Newton, MA 02461-1112
Single Family
  • 4 beds
  • 2.5 baths
  • 4,015 sqft
  • Built in 1931
Mark D Leiter, Rebecca B Leiter
 

FAQ about the house at 24 Beverly Rd, Newton, MA


NOTICE: You may not use RadioAwards or the information it provides to make decisions about employment, credit, housing or any other purpose that would require Fair Credit Reporting Act (FCRA) compliance. RadioAwards is not a Consumer Reporting Agency (CRA) as defined by the FCRA and does not provide consumer reports.