20 Curve St, Newton MA  02465-2207 exterior

20 Curve St Newton, MA 02465 / 2207

Residence for Single Family

(UPDATED: 07/26/2025)
  • 6 Beds
  • 3 Baths
  • 4.778 square feet
Property Report

Information about property on 20 Curve St, Newton MA, 02465-2207. Find out owner contacts, building history, price, neighborhood at Homemetry Address Directory.

Property Details

As is shown in our records this property is situated at 20 Curve Street, Newton, MA.

Facts

  • Built in 1900
  • Property use Two Family
  • Lot size 11,185 sqft
  • Effective area 4,778 sqft
  • Building type Residential
  • Rooms 12
  • Bedrooms 6
  • Bathrooms 2
  • Stories 2
  • Exterior condition Average
  • Trim None
  • Foundation type Brick/Fldstone
  • Roof material Asphalt Shingl
  • Fuel type Oil
  • Frontage 130 feet
  • Basement area 1,436 sqft
  • Porch area 240 sqft
  • Deck area 170 sqft
  • Heating & Cooling
  • Heat type Steam
  • Exterior Home Features
  • Exterior walls Vinyl Siding
  • Roof type Gable

Features

  • Interior condition: Good

Householders and Tenants for 20 Curve St, Newton MA

Possible residents contact details

Person Name Phone Number Additional Info
Atta E P Barry
Chester B Tr Lomax
David J Barry
James C Tr Spikes
Julia Haywood Age: 42
617-803-****
Residential status:
Homeowner
Job:
Administration/Managerial
Katherine E Smith Age: 59
Kristen E Smith Age: 59
617-332-****
Residential status:
Homeowner
Job:
Clerical/White Collar
Kristen Haywood
617-332-****
Louis E Tr Ford
MYRTLE BAPTIST CHURCH OF WEST NEWTON
Nikita K Selivan Age: 27
S Smita Age: 60
Strickland Smith
Residential status:
Renter
Job:
Protective Service Occupations
Tirah Haywood Age: 91
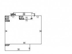
20 Curve St, Newton MA  02465-2207 plot plan 20 Curve St, Newton MA  02465-2207 floor plan 20 Curve St, Newton MA  02465-2207 aerial view

Cost estimate history

YearAssessment
2016 $706,400
2015 $660,200
2014 $632,100
2013 $632,100
2012 $632,100
2011 $642,400
2010 $655,500
2009 $690,000
2008 $690,000
2007 $682,400
2006$662,500
2005$643,200
2004$559,200
2003$490,500
2002$490,500
2001$378,100
2000$345,300
1999$314,200
1998$266,600
1997$257,600
1996$245,300
1995$230,300
1994$230,300
1993$255,900

Where is 20 Curve St, Newton MA located on map?

Properties Nearby

Street AddressResidens/Landlords
11 Curve St, Newton, MA 02465-2206
Single Family
  • 2 beds
  • 1 bath
  • 2,269 sqft
  • Built in 1880
Barbara Revaleon, 11 CURVE STREET REALTY TRUST
12 Curve St, Newton, MA 02465-2207
Single Family
  • 3 beds
  • 1.5 baths
  • 2,643 sqft
  • Built in 1880
MYRTLE BAPTIST CHURCH OF WEST NEWTON, Samuel A Turner
 

FAQ about the house at 20 Curve St, Newton, MA


NOTICE: You may not use RadioAwards or the information it provides to make decisions about employment, credit, housing or any other purpose that would require Fair Credit Reporting Act (FCRA) compliance. RadioAwards is not a Consumer Reporting Agency (CRA) as defined by the FCRA and does not provide consumer reports.