195 Morton St, Newton MA  02459-1522 exterior

195 Morton St Newton, MA 02459 / 1522

Residence for Single Family

(UPDATED: 09/09/2025)
  • 4 Beds
  • 2 Baths
  • 5.392 square feet
Property Report

Information about property on 195 Morton St, Newton MA, 02459-1522. Find out owner contacts, building history, price, neighborhood at Homemetry Address Directory.

Property Details

As is shown in our records this property stands at 195 Morton Street, Newton, MA.

Facts

  • Built in 1892
  • Property use Single Family
  • Lot size 9,968 sqft
  • Effective area 4,852 sqft
  • Gross building area 5,392 sqft
  • Building type Residential
  • Rooms 9
  • Bedrooms 4
  • Stories 2
  • Exterior condition Average
  • Trim None
  • Foundation type Brick/Fldstone
  • Roof material Asphalt Shingl
  • Fuel type Gas
  • Air conditioning Central
  • Frontage 92 feet
  • Finished attic area 540 sqft
  • Basement area 1,195 sqft
  • Porch area 108 sqft
  • Enclosed porch area 254 sqft
  • Attached garage area 440 sqft
  • Heating & Cooling
  • Heat type Hot Wtr Radiat
  • Exterior Home Features
  • Exterior walls Clapboard
  • Roof type Hip

Features

  • Kitchen quality: Above Average

Householders and Tenants for 195 Morton St, Newton MA

Possible residents contact details

Person Name Phone Number Additional Info
Arthur E Schoepfer
LICHTIN REALTY TRUST
LICHTIN REALTY TRUST /S TRS
NASH MARIE F J EST
Norman N Lichtin Age: 103
617-244-****
Phyllis W Lichtin Age: 99
617-244-****
Randall W King Age: 60
617-771-****
Residential status:
Homeowner
Job:
Service Occupations
Sarah B King Age: 27
617-771-****
Residential status:
Homeowner
Suzanne L Bender Age: 59
617-969-****
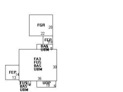
195 Morton St, Newton MA  02459-1522 plot plan 195 Morton St, Newton MA  02459-1522 floor plan 195 Morton St, Newton MA  02459-1522 aerial view

Cost estimate history

YearAssessment
2016 $957,700
2015 $895,000
2014 $845,600
2013 $845,600
2012 $845,600
2011 $824,800
2010 $841,600
2009 $830,300
2008 $830,300
2007 $866,500
2006$841,300
2005$801,200
2004$738,200
2003$659,100
2002$659,100
2001$567,300
2000$518,100
1999$471,400
1998$400,900
1997$367,800
1996$350,300
1995$343,600
1994$327,200
1993$327,200
1992$342,900

Where is 195 Morton St, Newton MA located on map?

Properties Nearby

Street AddressResidens/Landlords
17 Morton St, Newton, MA 02459-1013
Single Family
  • 3 beds
  • 1 bath
  • 3,179 sqft
  • Built in 1927
Dorothy A Bell, J L Bell, Editorial Consulting
20 Morton St, Newton, MA 02459-1009
Single Family
  • 3 beds
  • 3.5 baths
  • 4,952 sqft
  • Built in 1935
Leah Gartner, Nathan H Gartner
 

FAQ about the house at 195 Morton St, Newton, MA


NOTICE: You may not use RadioAwards or the information it provides to make decisions about employment, credit, housing or any other purpose that would require Fair Credit Reporting Act (FCRA) compliance. RadioAwards is not a Consumer Reporting Agency (CRA) as defined by the FCRA and does not provide consumer reports.