18 Westfield Rd, Newton MA  02465-2563 exterior

18 Westfield Rd Newton, MA 02465 / 2563

Residence for Single Family

(UPDATED: 09/21/2025)
  • 4 Beds
  • 2 Baths
  • 3.718 square feet
Property Report

Information about property on 18 Westfield Rd, Newton MA, 02465-2563. Find out owner contacts, building history, price, neighborhood at Homemetry Address Directory.

Property Details

This is a single-family residence, which is situated at 18 Westfield Road, Newton, Massachusetts.

Facts

  • Built in 1936
  • Property use Single Family
  • Lot size 15,322 sqft
  • Effective area 3,475 sqft
  • Gross building area 3,718 sqft
  • Building type Residential
  • Rooms 8
  • Bedrooms 3
  • Stories 2
  • Exterior condition Average
  • Trim Half Wall
  • Foundation type Concrete
  • Roof material Asphalt Shingl
  • Fuel type Oil
  • Air conditioning Central
  • Frontage 55 feet
  • Basement area 972 sqft
  • Finished basement area 729 sqft
  • Porch area 48 sqft
  • Deck area 304 sqft
  • Attached garage area 190 sqft
  • Heating & Cooling
  • Heat type Hot Wtr Radiat
  • Exterior Home Features
  • Exterior walls Wood Shingle
  • Roof type Gable

Features

  • Kitchen quality: Good
  • Bath quality: Above Average

Householders and Tenants for 18 Westfield Rd, Newton MA

Possible residents contact details

Person Name Phone Number Additional Info
Alexander Roth
Alexander W Cekala Age: 39
Residential status:
Homeowner
Alison I Minkoff Age: 46
617-332-****
Andrea Kowalski
Erin Clark Age: 51
617-244-****
Residential status:
Homeowner
Job:
Medical Professional
Jill Ann Puyear
Kenneth Minkoff Age: 76
617-969-****
Matthew Thomas Clark Age: 50
Job:
Production Occupations
Maxine L Minkoff Age: 76
617-332-****
Michael Minkoff Age: 71
617-332-****
Rebecca J Minkoff Age: 45
617-332-****
SERKIN FLORENCE E S EXOR
SERKIN JUDITH A EXOR
Sharon M Jones Age: 55

Possible Businesses

Organization Phone Number Additional Info
Maxinel R Minkoff
Industry:
Business Services at Non-Commercial Site
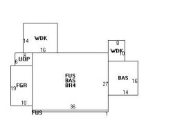
18 Westfield Rd, Newton MA  02465-2563 plot plan 18 Westfield Rd, Newton MA  02465-2563 floor plan 18 Westfield Rd, Newton MA  02465-2563 aerial view

Purchase History

DateEventPriceSourceAgents
09/11/2009 Sold $845,000 Public records

Cost estimate history

YearAssessment
2016 $1,163,900
2015 $1,036,500
2014 $837,400
2013 $812,500
2012 $812,500
2011 $822,700
2010 $950,300
2009 $969,700
2008 $969,700
2007 $1,009,200
2006$979,800
2005$933,100
2004$865,300
2003$772,600
2002$772,600
2001$653,300
2000$579,200
1999$527,000
1998$463,300
1997$441,200
1996$420,200
1995$357,400
1994$340,400
1993$340,400
1992$358,800

Where is 18 Westfield Rd, Newton MA located on map?

Properties Nearby

Street AddressResidens/Landlords
12 Westfield Rd, Newton, MA 02465-2563
Single Family
  • 3 beds
  • 3.5 baths
  • 4,322 sqft
  • Built in 1922
Christopher G Azzoli, Lisa A Azzoli
 

FAQ about the house at 18 Westfield Rd, Newton, MA


NOTICE: You may not use RadioAwards or the information it provides to make decisions about employment, credit, housing or any other purpose that would require Fair Credit Reporting Act (FCRA) compliance. RadioAwards is not a Consumer Reporting Agency (CRA) as defined by the FCRA and does not provide consumer reports.