18 Glen Ave, Newton MA  02459-2045 exterior

18 Glen Ave Newton, MA 02459 / 2045

Residence for Single Family

(UPDATED: 09/28/2025)
  • 3 Beds
  • 1 Baths
  • 2.918 square feet
Property Report

Information about property on 18 Glen Ave, Newton MA, 02459-2045. Find out owner contacts, building history, price, neighborhood at Homemetry Address Directory.

Property Details

This is a single-family residence, which is situated at 18 Glen Avenue, Newton, Massachusetts.

Facts

  • Built in 1930
  • Property use Single Family
  • Lot size 11,900 sqft
  • Effective area 2,918 sqft
  • Building type Residential
  • Rooms 6
  • Bedrooms 3
  • Bathrooms 1
  • Stories 2
  • Exterior condition Average
  • Trim None
  • Foundation type Concrete
  • Roof material Asphalt Shingl
  • Fuel type Gas
  • Frontage 70 feet
  • Basement area 1,026 sqft
  • Shed area 128 sqft
  • Porch area 18 sqft
  • Enclosed porch area 108 sqft
  • Heating & Cooling
  • Heat type Hot Wtr Radiat
  • Exterior Home Features
  • Exterior walls Vinyl Siding
  • Roof type Gable

Features

  • Bath quality: Below Average

Householders and Tenants for 18 Glen Ave, Newton MA

Possible residents contact details

Person Name Phone Number Additional Info
Ann C Ellison
Elizabeth C Ellison
Henry C Ellison
Johanna M Clifford Age: 116
617-969-****
Residential status:
Homeowner
Michael J Clifford Age: 74
617-969-****
Residential status:
Homeowner
Job:
Executive, Administrative, and Managerial Occupations

Businesses

Organization Phone Number Additional Info
Ann Marie Clifford Med., Caes
Industry:
Nonclassifiable Establishments
Ann J Clifford Age: 74
617-969-****
Residential status:
Homeowner
Job:
Executive, Administrative, and Managerial Occupations
Type:
Medical
MED
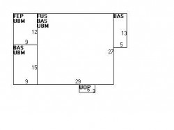
18 Glen Ave, Newton MA  02459-2045 plot plan 18 Glen Ave, Newton MA  02459-2045 floor plan 18 Glen Ave, Newton MA  02459-2045 aerial view

Cost estimate history

YearAssessment
2016 $653,100
2015 $610,400
2014 $584,100
2013 $584,100
2012 $584,100
2011 $581,200
2010 $593,100
2009 $605,200
2008 $605,200
2007 $622,300
2006$604,200
2005$575,400
2004$526,800
2003$470,400
2002$470,400
2001$389,300
2000$355,500
1999$323,500
1998$288,900
1997$275,100
1996$262,000
1995$255,400
1994$243,200
1993$243,200
1992$267,400

Where is 18 Glen Ave, Newton MA located on map?

18 Glen Ave incidents registered in FEMA
(Federal Emergency Management Agency)

To date, we have no information about incidents registered in FEMA in 2025
13 Jan 2009 Gas leak (natural gas or LPG)
Property Use —
Residential street, road or residential driveway

Gln Ave Incidents registered in FEMA
(Federal Emergency Management Agency)

To date, we have no information about incidents registered in FEMA in 2025
13 Jan 2009 Gas leak (natural gas or LPG)
Property Use —
Residential street, road or residential driveway
24 Dec 2003 CO detector activation due to malfunction
Property Use —
1 or 2 family dwelling
20 Dec 2003 EMS call, excluding vehicle accident with injury
Property Use —
1 or 2 family dwelling
06 Aug 2003 Arcing, shorted electrical equipment
Property Use —
Residential street, road or residential driveway

View more

Properties Nearby

Street AddressResidens/Landlords
 

FAQ about the house at 18 Gln Ave, Newton, MA


NOTICE: You may not use RadioAwards or the information it provides to make decisions about employment, credit, housing or any other purpose that would require Fair Credit Reporting Act (FCRA) compliance. RadioAwards is not a Consumer Reporting Agency (CRA) as defined by the FCRA and does not provide consumer reports.