177 Upland Ave, Newton MA  02461-2001 exterior

177 Upland Ave Newton, MA 02461 / 2001

Residence for Single Family

(UPDATED: 09/26/2025)
  • 2 Beds
  • 1 Baths
  • 1.177 square feet
Property Report

Information about property on 177 Upland Ave, Newton MA, 02461-2001. Find out owner contacts, building history, price, neighborhood at Homemetry Address Directory.

Property Details

This is a single-family possession, which is situated at 177 Upland Avenue, Newton, Massachusetts.

Facts

  • Built in 1950
  • Property use Single Family
  • Lot size 11,115 sqft
  • Effective area 1,177 sqft
  • Building type Residential
  • Rooms 5
  • Bedrooms 2
  • Stories 1
  • Exterior condition Average
  • Trim Full Wall
  • Foundation type Conc Block
  • Roof material Asphalt Shingl
  • Fuel type Gas
  • Air conditioning None
  • Frontage 80 feet
  • Shed area 60 sqft
  • Porch area 189 sqft
  • Heating & Cooling
  • Heat type Forced Air-Duc
  • Exterior Home Features
  • Exterior walls Vinyl Siding
  • Roof type Gable

Features

  • Kitchen quality: Below Average

Householders and Tenants for 177 Upland Ave, Newton MA

Possible residents contact details

Person Name Phone Number Additional Info
177 UPLAND AVENUE NEWTON TRUST
Hiu T Tsui
617-332-****
Ida Bograd Age: 112
617-527-****
Jeffrey Bograd
Philip P Bograd Age: 114
617-527-****
TSUI HIU TOU
Tou Tsui
617-332-****
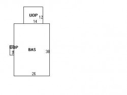
177 Upland Ave, Newton MA  02461-2001 plot plan 177 Upland Ave, Newton MA  02461-2001 floor plan 177 Upland Ave, Newton MA  02461-2001 aerial view

Cost estimate history

YearAssessment
2016 $406,000
2015 $379,400
2014 $358,900
2013 $358,900
2012 $358,900
2011 $356,000
2010 $363,300
2009 $370,700
2008 $370,700
2007 $381,200
2006$370,100
2005$352,500
2004$329,300
2003$294,000
2002$294,000
2001$239,700
2000$218,900
1999$199,200
1998$200,000
1997$188,700
1996$179,700
1995$164,700
1994$164,700
1993$164,700
1992$166,700

Where is 177 Upland Ave, Newton MA located on map?

Upland Ave Incidents registered in FEMA
(Federal Emergency Management Agency)

To date, we have no information about incidents registered in FEMA in 2025
24 Feb 2007 Gas leak (natural gas or LPG)
Property Use —
Residential street, road or residential driveway

Properties Nearby

Street AddressResidens/Landlords
 

FAQ about the house at 177 Upland Ave, Newton, MA


NOTICE: You may not use RadioAwards or the information it provides to make decisions about employment, credit, housing or any other purpose that would require Fair Credit Reporting Act (FCRA) compliance. RadioAwards is not a Consumer Reporting Agency (CRA) as defined by the FCRA and does not provide consumer reports.