Cost estimate history
| Year | Assessment | ||
|---|---|---|---|
| 2016 | $822,600 | ||
| 2015 | $768,800 | ||
| 2014 | $718,400 | ||
| 2013 | $718,400 | ||
| 2012 | $718,400 | ||
| 2011 | $704,900 | ||
| 2010 | $719,300 | ||
| 2009 | $734,000 | ||
| 2008 | $734,000 | ||
| 2007 | $738,100 | ||
| 2006 | $716,600 | ||
| 2005 | $682,500 | ||
| 2004 | $601,800 | ||
| 2003 | $537,300 | ||
| 2002 | $537,300 | ||
| 2001 | $427,600 | ||
| 2000 | $390,500 | ||
| 1999 | $355,300 | ||
| 1998 | $329,200 | ||
| 1997 | $313,500 | ||
| 1996 | $298,600 | ||
| 1995 | $301,500 | ||
| 1994 | $287,100 | ||
| 1993 | $287,100 | ||
| 1992 | $319,900 |
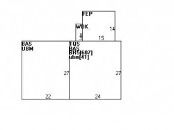
Market Activities
Elgin St Incidents registered in FEMA
(Federal Emergency Management Agency)
To date, we have no information about incidents registered in FEMA in 2025
19 Sep 2003
Rescue, emergency medical call (EMS) call, other
Property Use —
1 or 2 family dwelling
Properties Nearby
| Street Address | Residens/Landlords | |
|---|---|---|
55 Elgin St, Newton, MA 02459-2046 Condominium (Residential)
|
Salvia Jain, LANGLEY ROAD PROPERTIES LP | |
59 Elgin St, Newton, MA 02459-2046 Two Family
|
Katherine Brathas, ELGIN LEVINE TRUST /S TR | |
63 Elgin St, Newton, MA 02459-2046 Two Family
|
Rebecca L Yeung, Michael C Yeung |


