17 Harvey Pl, Newton MA  02465-2020 exterior

17 Harvey Pl Newton, MA 02465 / 2020

Residence for Single Family

(UPDATED: 09/28/2025)
  • 3 Beds
  • 2 Baths
  • 2.508 square feet
Property Report

Information about property on 17 Harvey Pl, Newton MA, 02465-2020. Find out owner contacts, building history, price, neighborhood at Homemetry Address Directory.

Property Details

This property has approximately twenty-four hundred square feet of effective area and sits on 0,12 acres.

Facts

  • Built in 1916
  • Property use Single Family
  • Lot size 5,352 sqft
  • Effective area 2,364 sqft
  • Gross building area 2,508 sqft
  • Building type Residential
  • Rooms 6
  • Bathrooms 1
  • Stories 2
  • Exterior condition Average
  • Trim Two Wall
  • Foundation type Concrete
  • Roof material Asphalt Shingl
  • Fuel type Gas
  • Air conditioning None
  • Frontage 75 feet
  • Basement area 868 sqft
  • Finished basement area 228 sqft
  • Enclosed porch area 48 sqft
  • Detached garage area 280 sqft
  • Carport area 180 sqft
  • Heating & Cooling
  • Heat type Steam
  • Exterior Home Features
  • Exterior walls Vinyl Siding
  • Roof type Gable

Householders and Tenants for 17 Harvey Pl, Newton MA

Possible residents contact details

Person Name Phone Number Additional Info
DIGIRONIMO MARY F &AL TRS &AL
DIGIRONIMO VINCENT J &AL TRS &AL
DIGIRONIMO VINCENT J EST
Dominic M Tr Caruso
HARVEY PLACE REALTY TRUST
John F Russo
Joseph M Tr Caruso
Residential status:
Homeowner
Josephine Russo
Laura Mcauliffe Age: 50
Job:
Professional/Technical
MARY F DIGIRONIMO LIVING TRUST
MARY F DIGIRONIMO LIVING TRUST &AL/S TRS &AL
Mary F Digironimo Age: 105
617-332-****
Rose Digironimo Age: 123
617-332-****
VINCENT J DIGIRONIMO LIVING TRUST
VINCENT J DIGIRONIMO LIVING TRUST &AL/S TRS &AL
Vincent J Digironimo Age: 102
617-332-****
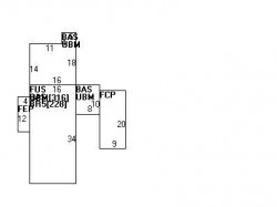
17 Harvey Pl, Newton MA  02465-2020 plot plan 17 Harvey Pl, Newton MA  02465-2020 floor plan 17 Harvey Pl, Newton MA  02465-2020 aerial view

Purchase History

DateEventPriceSourceAgents
03/31/2009 Sold $340,000 Public records

Cost estimate history

YearAssessment
2016 $378,400
2015 $353,600
2014 $340,500
2013 $340,500
2012 $340,500
2011 $351,200
2010 $358,400
2009 $365,700
2008 $365,700
2007 $366,000
2006$355,300
2005$338,400
2004$304,900
2003$272,200
2002$272,200
2001$231,800
2000$211,700
1999$192,600
1998$162,900
1997$154,400
1996$147,000
1995$152,100
1994$152,100
1993$152,100
1992$158,700

Where is 17 Harvey Pl, Newton MA located on map?

Harvey Pl Incidents registered in FEMA
(Federal Emergency Management Agency)

To date, we have no information about incidents registered in FEMA in 2025
26 Feb 2012 Carbon monoxide incident
Property Use —
1 or 2 family dwelling

Properties Nearby

Street Address Residens/Landlords
David Levangie
 

FAQ about the house at 17 Harvey Pl, Newton, MA


NOTICE: You may not use RadioAwards or the information it provides to make decisions about employment, credit, housing or any other purpose that would require Fair Credit Reporting Act (FCRA) compliance. RadioAwards is not a Consumer Reporting Agency (CRA) as defined by the FCRA and does not provide consumer reports.