Purchase History
| Date | Event | Price | Source | Agents |
|---|---|---|---|---|
| 06/29/2004 | Sold | $750,000 | Public records | |
| 04/27/1998 | Sold | $322,000 | Public records | |
| 06/15/1994 | Sold | $225,000 | Public records |
PURCHASE HISTORY 165 Harvard St, Newton MA
Cost estimate history
| Year | Assessment | ||
|---|---|---|---|
| 2016 | $902,000 | ||
| 2015 | $643,700 | ||
| 2014 | $552,900 | ||
| 2013 | $552,900 | ||
| 2012 | $532,900 | ||
| 2011 | $531,900 | ||
| 2010 | $542,800 | ||
| 2009 | $553,900 | ||
| 2008 | $553,900 | ||
| 2007 | $607,500 | ||
| 2006 | $589,800 | ||
| 2005 | $561,700 | ||
| 2004 | $519,500 | ||
| 2003 | $463,800 | ||
| 2002 | $463,800 | ||
| 2001 | $342,800 | ||
| 2000 | $313,100 | ||
| 1999 | $284,900 | ||
| 1998 | $279,400 | ||
| 1997 | $259,900 | ||
| 1996 | $247,500 | ||
| 1995 | $196,200 | ||
| 1994 | $196,200 | ||
| 1993 | $196,200 | ||
| 1992 | $200,100 |
Building Permits
To date, we have no information about building permits in 2025
Nov 26, 2012
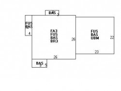
Description: Construct 2-story addition (24'x23') on right side of existing dwelling with 2 car garage below
- Valuation: $26,000,000
- Fee: $4,836.00 paid to City of Newton, Massachusetts
- Parcel #: 22023 0002
- Permit #: 12110758
Mar 16, 2011
Description: Add a bathroom with shower in the basement. build partition to seperate playroom from laundry room
- Contractor: Manzella Contracting
- Valuation: $1,200,000
- Fee: $223.20 paid to City of Newton, Massachusetts
- Parcel #: 22023 0002
- Permit #: 11030331
Harvard St Fire Incident History
To date, we have no information about fire incidents in 2025
21 Apr 2013
Building fires
Property Use —
1 or 2 family dwelling
Area of Origin —
Exterior balcony, unenclosed porch
First Ignition —
Exterior wall covering or finish
Heat Source —
Cigarette
Harvard St Incidents registered in FEMA
(Federal Emergency Management Agency)
To date, we have no information about incidents registered in FEMA in 2025
15 Oct 2006
Carbon monoxide incident
Property Use —
1 or 2 family dwelling
Properties Nearby
| Street Address | Residens/Landlords | |
|---|---|---|
20 Harvard St, Newton, MA 02460-2031 Two Family
|
JOSEPH JOHN SCHNEIDER 1988 TRUST, BANK OF AMERICA TR | |
32 Harvard St, Newton, MA 02460-2031 Single Family
|
David Knox, Patricia A Tr Knox | |
40 Harvard St, Newton, MA 02460-2003 Three Family
|
Mark Susser, Jeanne Stewart | |
44 Harvard St, Newton, MA 02460-2003 Two Family
|
44 HARVARD STREET LLC, Daniel O Corrigan | |
153 Harvard St, Newton, MA 02460-2277 Single Family
|
Christopher T Watson, Sylvia E Rosas | |
154 Harvard St, Newton, MA 02460-2204 Two Family
|
Kapoor, Vikas, Kapoor Vikas | |
158 Harvard St, Newton, MA 02460-2272 Single Family
|
Liqin Xie, Charles Q Wang | |
163 Harvard St, Newton, MA 02460-2238 Single Family
|
Lucille J Burns, Kevin A Burns | |
164 Harvard St, Newton, MA 02460-2272 Single Family
|
Carolen Everrette, Arthur M Sobol |


