159 Oliver Rd, Newton MA  02468-2322 exterior

159 Oliver Rd Newton, MA 02468 / 2322

Residence for Single Family

(UPDATED: 09/09/2025)
  • 3 Beds
  • 1 Baths
  • 3.861 square feet
Property Report

Information about property on 159 Oliver Rd, Newton MA, 02468-2322. Find out owner contacts, building history, price, neighborhood at Homemetry Address Directory.

Property Details

A single-family home at 159 Oliver Road, Newton, Massachusetts.

Facts

  • Built in 1938
  • Property use Single Family
  • Lot size 5,999 sqft
  • Effective area 3,025 sqft
  • Gross building area 3,861 sqft
  • Building type Residential
  • Rooms 8
  • Bedrooms 3
  • Stories 2
  • Exterior condition Average
  • Trim Half Wall
  • Foundation type Concrete
  • Roof material Asphalt Shingl
  • Fuel type Gas
  • Air conditioning None
  • Frontage 60 feet
  • Unfinished attic area 419 sqft
  • Basement area 1,037 sqft
  • Enclosed porch area 66 sqft
  • Deck area 16 sqft
  • Basement garages 1
  • Heating & Cooling
  • Heat type Hot Wtr Radiat
  • Exterior Home Features
  • Exterior walls Wood Shingle
  • Roof type Gable

Householders and Tenants for 159 Oliver Rd, Newton MA

Possible residents contact details

Person Name Phone Number Additional Info
ABBEY ROAD REALTY TRUST
ALMAR REALTY TRUST
ALMAR REALTY TRUST /S TRS
Alio M Tr Fishman
Allen Dalezman
617-916-****
Ann M Esvelt Age: 73
617-641-****
Residential status:
Homeowner
Barbara Gossett Age: 84
706-860-****
Job:
Retired
Barbara S Cronmiller Age: 64
617-527-****
Edward Stanton
617-916-****
Heike Lohrmann Age: 61
617-332-****
James D Chatterton Age: 61
617-527-****
Lisa J Damon Age: 69
617-527-****
M Fishman
Manisha Patel
Maria R Chatterton Age: 58
617-527-****
Marilena Tr Fishman
RUBBER SOUL PROPERTIES LLC
Ralf Lohrmann Age: 62
617-792-****
Residential status:
Renter
Job:
Service Occupations
Rals Lohrmann Age: 62
617-799-****
Samuel Gossett Age: 85
706-860-****
Job:
Retired
Sanjiv K Tr Patel
Sotiri Antonopoulos
617-332-****
Terence G Esvelt
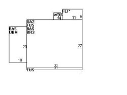
159 Oliver Rd, Newton MA  02468-2322 plot plan 159 Oliver Rd, Newton MA  02468-2322 floor plan 159 Oliver Rd, Newton MA  02468-2322 aerial view

Cost estimate history

YearAssessment
2016 $619,000
2015 $578,500
2014 $555,800
2013 $555,800
2012 $555,800
2011 $552,100
2010 $563,400
2009 $537,300
2008 $537,300
2007 $569,600
2006$553,000
2005$526,700
2004$475,600
2003$424,600
2002$424,600
2001$337,500
2000$308,200
1999$280,400
1998$246,500
1997$246,500
1996$234,800
1995$237,200
1994$225,900
1993$225,900
1992$241,500

Where is 159 Oliver Rd, Newton MA located on map?

Properties Nearby

Street AddressResidens/Landlords
 

FAQ about the house at 159 Oliver Rd, Newton, MA


NOTICE: You may not use RadioAwards or the information it provides to make decisions about employment, credit, housing or any other purpose that would require Fair Credit Reporting Act (FCRA) compliance. RadioAwards is not a Consumer Reporting Agency (CRA) as defined by the FCRA and does not provide consumer reports.