154 Derby St, Newton MA  02465-1560 exterior

154 Derby St Newton, MA 02465 / 1560

Residence for Single Family

(UPDATED: 09/02/2025)
  • 3 Beds
  • 1 Baths
  • 2.128 square feet
Property Report

Information about property on 154 Derby St, Newton MA, 02465-1560. Find out owner contacts, building history, price, neighborhood at Homemetry Address Directory.

Property Details

At 154 Derby Street, Newton, MA based a single-family estate.

Facts

  • Built in 1926
  • Property use Single Family
  • Lot size 4,414 sqft
  • Effective area 2,128 sqft
  • Building type Residential
  • Rooms 7
  • Bedrooms 3
  • Stories 2
  • Exterior condition Average
  • Trim None
  • Foundation type Concrete
  • Roof material Asphalt Shingl
  • Fuel type Gas
  • Frontage 43 feet
  • Basement area 624 sqft
  • Porch area 24 sqft
  • Enclosed porch area 16 sqft
  • Detached garage area 252 sqft
  • Heating & Cooling
  • Heat type Steam
  • Exterior Home Features
  • Exterior walls Vinyl Siding
  • Roof type Hip

Features

  • Kitchen quality: Below Average

Householders and Tenants for 154 Derby St, Newton MA

Possible residents contact details

Person Name Phone Number Additional Info
Charles P Tr Mcgourty
James H Mcgourty Age: 111
617-558-****
Residential status:
Homeowner
Job:
Building and Grounds Cleaning and Maintenance Occupations
Maria D Sevigny Age: 42
Residential status:
Homeowner
Mary E Walsh Age: 102
Residential status:
Homeowner
Job:
Production Occupations
SHEILA M MCGOURTY SUPPLEMENTAL NEEDS TRUST
Sheila K Mcgourty Age: 104
617-558-****
Residential status:
Homeowner
Job:
Retired
Stephen P Sevigny
Residential status:
Homeowner
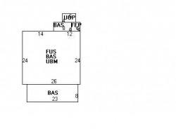
154 Derby St, Newton MA  02465-1560 plot plan 154 Derby St, Newton MA  02465-1560 floor plan 154 Derby St, Newton MA  02465-1560 aerial view

Cost estimate history

YearAssessment
2016 $426,100
2015 $398,200
2014 $380,000
2013 $380,000
2012 $380,000
2011 $388,300
2010 $396,200
2009 $404,300
2008 $409,600
2007 $409,000
2006$397,100
2005$378,200
2004$293,300
2003$261,900
2002$261,900
2001$222,400
2000$203,100
1999$184,800
1998$175,900
1997$166,700
1996$158,800
1995$149,000
1994$149,000
1993$149,000
1992$165,300

Where is 154 Derby St, Newton MA located on map?

Derby St Fire Incident History

To date, we have no information about fire incidents in 2025
19 May 2018 Building fires
Property Use —
1 or 2 family dwelling
Area of Origin —
Common room, den, family room, living room, lounge
First Ignition —
Furniture, utensils, other
Heat Source —
Cigarette lighter
29 May 2010 Building fires
Property Use —
Multifamily dwellings
Area of Origin —
Outside area, other
First Ignition —
Organic materials, other
Heat Source —
Cigarette
30 Nov 2008 Passenger vehicle fire
Property Use —
Vehicle parking area
Area of Origin —
Operator/passenger area of transportation equip.
12 Jun 2008 Building fires
Property Use —
1 or 2 family dwelling
Area of Origin —
Courtyard, patio, porch, terrace
First Ignition —
Magazine, newspaper, writing paper
Heat Source —
Flame/torch used for lighting

View more

Derby St Incidents registered in FEMA
(Federal Emergency Management Agency)

To date, we have no information about incidents registered in FEMA in 2025
09 Oct 2015 Carbon monoxide incident
Property Use —
Elementary school, including kindergarten
02 Sep 2011 Arcing, shorted electrical equipment
Property Use —
Residential street, road or residential driveway
14 Sep 2010 Overheated motor
Property Use —
Elementary school, including kindergarten
19 Jul 2009 Gasoline or other flammable liquid spill
Property Use —
1 or 2 family dwelling

View more

Properties Nearby

Street AddressResidens/Landlords
14 Derby St, Newton, MA 02465-1622
Two Family
  • 4 beds
  • 4,080 sqft
  • Built in 1910
Cathleen Bonacci, Hilda Boyar
120 Derby St, Newton, MA 02465-1556
Single Family
  • 2 beds
  • 3 baths
  • 2,864 sqft
  • Built in 1954
Maryna Gundilovich, Konstantin Gundilovich
124 Derby St, Newton, MA 02465-1556
Single Family
  • 3 beds
  • 2 baths
  • 2,540 sqft
  • Built in 1952
Donald N Gentile, Joan E Gentile
140 Derby St, Newton, MA 02465-1556
Single Family
  • 3 beds
  • 1 bath
  • 2,370 sqft
  • Built in 1955
Rosa Davis, Maureen Davis
144 Derby St, Newton, MA 02465-1556
Single Family
  • 3 beds
  • 2 baths
  • 3,031 sqft
  • Built in 1930
ROMAN FAMILY NOMINEE TRUST, Carol A Roman
158 Derby St, Newton, MA 02465-1560
Single Family
  • 3 beds
  • 1 bath
  • 2,560 sqft
  • Built in 1950
Michael C Sjoberg, Laura A Sjoberg
164 Derby St, Newton, MA 02465-1560
Single Family
  • 2 beds
  • 1 bath
  • 1,848 sqft
  • Built in 1940
William H Dowling Jr, Margaret M Dowling
167 Derby St, Newton, MA 02465-1558
Two Family
  • 4 beds
  • 2 baths
  • 2,080 sqft
  • Built in 1880
Ryan R Fitzpatrick, Robert E Fitzpatrick
168 Derby St, Newton, MA 02465-1560
Single Family
  • 2 beds
  • 2 baths
  • 2,113 sqft
  • Built in 1940
Andrea Santarlasci, Anna M Santarlasci
Pamela J Annas, Rebecca Hull
 

FAQ about the house at 154 Derby St, Newton, MA


NOTICE: You may not use RadioAwards or the information it provides to make decisions about employment, credit, housing or any other purpose that would require Fair Credit Reporting Act (FCRA) compliance. RadioAwards is not a Consumer Reporting Agency (CRA) as defined by the FCRA and does not provide consumer reports.