15 Melville Ave, Newton MA  02460-1223 exterior

15 Melville Ave Newton, MA 02460 / 1223

Residence for Single Family

(UPDATED: 08/25/2025)
  • 3 Beds
  • 2 Baths
  • 3.184 square feet
Property Report

Information about property on 15 Melville Ave, Newton MA, 02460-1223. Find out owner contacts, building history, price, neighborhood at Homemetry Address Directory.

Property Details

At 15 Melville Avenue, Newton, MA placed a single-family residence.

Facts

  • Built in 1920
  • Property use Single Family
  • Lot size 5,000 sqft
  • Effective area 2,846 sqft
  • Gross building area 3,184 sqft
  • Building type Residential
  • Rooms 7
  • Bedrooms 3
  • Stories 2
  • Exterior condition Average
  • Trim None
  • Foundation type Concrete
  • Roof material Asphalt Shingl
  • Fuel type Oil
  • Fireplaces 1
  • Frontage 50 feet
  • Unfinished attic area 338 sqft
  • Basement area 884 sqft
  • Finished basement area 400 sqft
  • Porch area 12 sqft
  • Detached garage area 360 sqft
  • Heating & Cooling
  • Heat type Hot Wtr Radiat
  • Exterior Home Features
  • Exterior walls Vinyl Siding
  • Roof type Gable

Householders and Tenants for 15 Melville Ave, Newton MA

Possible residents contact details

Person Name Phone Number Additional Info
Ange Panichella
617-527-****
Angelo Panichella Age: 106
617-527-****
Residential status:
Homeowner
Job:
Personal Care and Service Occupations
Filomena Panichella Age: 99
617-527-****
Residential status:
Homeowner
Job:
Personal Care and Service Occupations
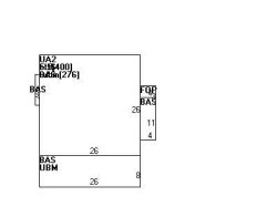
15 Melville Ave, Newton MA  02460-1223 plot plan 15 Melville Ave, Newton MA  02460-1223 floor plan 15 Melville Ave, Newton MA  02460-1223 aerial view

Cost estimate history

YearAssessment
2016 $483,900
2015 $452,200
2014 $432,600
2013 $432,600
2012 $432,600
2011 $432,600
2010 $441,400
2009 $450,400
2008 $450,400
2007 $514,700
2006$499,700
2005$475,900
2004$379,300
2003$338,700
2002$338,700
2001$279,800
2000$255,500
1999$232,500
1998$197,600
1997$197,600
1996$188,200
1995$163,800
1994$170,600
1993$170,600
1992$176,100

Where is 15 Melville Ave, Newton MA located on map?

Properties Nearby

Street AddressResidens/Landlords
 

FAQ about the house at 15 Melville Ave, Newton, MA


NOTICE: You may not use RadioAwards or the information it provides to make decisions about employment, credit, housing or any other purpose that would require Fair Credit Reporting Act (FCRA) compliance. RadioAwards is not a Consumer Reporting Agency (CRA) as defined by the FCRA and does not provide consumer reports.