1488 Commonwealth Ave Newton, MA 02465 / 2832

Residence for Single Family

(UPDATED: 09/22/2025)
  • 4 Beds
  • 2 Baths
  • 5.021 square feet
Sold Mar 2021
$1,300,000
Property Report

Information about property on 1488 Commonwealth Ave, Newton MA, 02465-2832. Find out owner contacts, building history, price, neighborhood at Homemetry Address Directory.

Property Details

At 1488 Commonwealth Avenue, Newton, MA based a single-family estate.

Facts

  • Built in 1950
  • Property use Single Family
  • Lot size 15,695 sqft
  • Effective area 3,271 sqft
  • Gross building area 5,021 sqft
  • Building type Residential
  • Rooms 9
  • Bedrooms 4
  • Stories 1
  • Exterior condition Average
  • Trim None
  • Foundation type Concrete
  • Roof material Asphalt Shingl
  • Fuel type Oil
  • Air conditioning Central
  • Frontage 100 feet
  • Basement area 2,333 sqft
  • Finished basement area 583 sqft
  • Basement garages 2
  • Heating & Cooling
  • Heat type Hot Wtr Radiat
  • Exterior Home Features
  • Exterior walls Brick Veneer
  • Roof type Gable

Householders and Tenants for 1488 Commonwealth Ave, Newton MA

Possible residents contact details

Person Name Phone Number Additional Info
Anne C Sullivan Age: 88
617-332-****
Residential status:
Homeowner
Job:
Production Occupations
Charles I Taylor
Dani J Sullivan
617-332-****
Daniel Sullivan Age: 91
Residential status:
Homeowner
Job:
Production Occupations
Felicita A Bossi
John E Bossi
Rose Taylor
Sarah Elizabeth Sullivan Age: 37
603-762-****
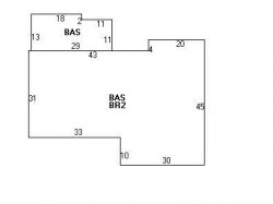
1488 Commonwealth Ave, Newton MA  02465-2832 plot plan 1488 Commonwealth Ave, Newton MA  02465-2832 floor plan 1488 Commonwealth Ave, Newton MA  02465-2832 aerial view

Cost estimate history

YearAssessment
2016 $880,800
2015 $823,200
2014 $780,100
2013 $780,100
2012 $780,100
2011 $781,300
2010 $797,200
2009 $813,500
2008 $813,500
2007 $857,000
2006$832,000
2005$792,400
2004$722,600
2003$645,200
2002$645,200
2001$543,000
2000$495,900
1999$451,200
1998$392,300
1997$373,600
1996$355,800
1995$370,800
1994$353,100
1993$353,100
1992$458,500

Where is 1488 Commonwealth Ave, Newton MA located on map?

Market Activities

To date, we have no information about market activities in 2025
Mar 2021 Sold
1488 Commonwealth Ave
Price history :
  • Single Family
  • 2,688 sqft
  • 4 beds
  • 3 baths

View more

Commonwealth Ave Fire Incident History

To date, we have no information about fire incidents in 2025
28 Mar 2014 Brush, or brush and grass mixture fire
Property Use —
Vehicle parking area
Area of Origin —
Highway, parking lot, street: on or near
25 Mar 2014 Passenger vehicle fire
Property Use —
Street or road in commercial area
Area of Origin —
Engine area, running gear, wheel area
First Ignition —
Electrical wire, cable insulation
Heat Source —
Heat from powered equipment, other
09 Nov 2013 Building fires
Property Use —
Business office
Area of Origin —
Office
First Ignition —
Furniture, utensils, other
26 Feb 2012 Building fires
Property Use —
1 or 2 family dwelling
Area of Origin —
Exterior balcony, unenclosed porch
First Ignition —
Organic materials, other
Heat Source —
Cigarette

View more

Commonwealth Ave Incidents registered in FEMA
(Federal Emergency Management Agency)

To date, we have no information about incidents registered in FEMA in 2025
02 Oct 2015 Electrical wiring/equipment problem, other
Property Use —
Hotel/motel, commercial
02 Oct 2015 Overheated motor
Property Use —
Hotel/motel, commercial
12 Dec 2014 Vehicle accident, general cleanup
Property Use —
Street or road in commercial area
05 Sep 2014 Vehicle accident, general cleanup
Property Use —
Street, other

View more

Commonwealth Ave Crime Incidents History

To date, we have no information about crime incidents in 2025
23 Aug 2016 Property Crime
1100 Block Commonwealth Ave, Newton MA
Case Number —
2016-0003823
Description —
FOUND PROPERTY
29 Jul 2014 Theft
1000 Block Commonwealth Ave, Newton MA
Case Number —
2014-0003669
Description —
LARC-FROM BLDG OVER $200
10 Apr 2014 Theft
1000 Block Commonwealth Ave, Newton MA
Case Number —
2014-0001687
Description —
LARC-FROM BLDG OVER $200

Properties Nearby

Street AddressResidens/Landlords
1438 Commonwealth Ave, Newton, MA 02465-2830
Single Family
  • 4 beds
  • 6 baths
  • 10,574 sqft
  • Built in 2007
Dante Roscini, Hope A Hayward
1445 Commonwealth Ave, Newton, MA 02465-2829
Single Family
  • 7 beds
  • 5 baths
  • 7,815 sqft
  • Built in 1920
B C EAGLES 79 REALTY TRUST, BC EAGLES 79 REALTY TRUST
1470 Commonwealth Ave, Newton, MA 02465-2832
Child Care Facility
  • 5 beds
  • 4.5 baths
  • Lot: 45,980 sqft
  • Built in 1954
Melvin Drapkin, Sydney A Perlman
1480 Commonwealth Ave, Newton, MA 02465-2832
Single Family
  • 3 beds
  • 2.5 baths
  • 4,319 sqft
  • Built in 1952
JANIS N MANN FAMILY TRUST, Janis N Mann
1481 Commonwealth Ave, Newton, MA 02465-2831
Single Family
  • 5 beds
  • 3 baths
  • 5,304 sqft
  • Built in 1960
BACK LOT NOMINEE TRUST, BEITCHMAN MONA FREEDMAN
1489 Commonwealth Ave, Newton, MA 02465-2831
Single Family
  • 5 beds
  • 5 baths
  • 9,579 sqft
  • Built in 2011
Jeffrey L Dodge, Neely A Dodge
1496 Commonwealth Ave, Newton, MA 02465-2832
Single Family
  • 3 beds
  • 3.5 baths
  • 4,710 sqft
  • Built in 1952
Arthur M Aframe, Joan F Katz
1525 Commonwealth Ave, Newton, MA 02465-2805
Single Family
  • 3 beds
  • 2 baths
  • 4,958 sqft
  • Built in 1948
Martin L Paley, Susan M Goorvich
1526 Commonwealth Ave, Newton, MA 02465-2806
Single Family
  • 6 beds
  • 7 baths
  • 8,258 sqft
  • Built in 1955
John T Tieu, Boris Belopolsky
1540 Commonwealth Ave, Newton, MA 02465-2806
Single Family
  • 4 beds
  • 5 baths
  • 6,116 sqft
  • Built in 1950
Mark A Derby, Shelley P Derby
 

FAQ about the house at 1488 Commonwealth Ave, Newton, MA


NOTICE: You may not use RadioAwards or the information it provides to make decisions about employment, credit, housing or any other purpose that would require Fair Credit Reporting Act (FCRA) compliance. RadioAwards is not a Consumer Reporting Agency (CRA) as defined by the FCRA and does not provide consumer reports.