143 Upland Ave, Newton MA  02461-2112 exterior

143 Upland Ave Newton, MA 02461 / 2112

Residence for Single Family

(UPDATED: 08/05/2025)
  • 5 Beds
  • 2 Baths
  • 3.534 square feet
Property Report

Information about property on 143 Upland Ave, Newton MA, 02461-2112. Find out owner contacts, building history, price, neighborhood at Homemetry Address Directory.

Property Details

This property has more than thirty-five hundred square feet of effective area and sits on 0,15 acres.

Facts

  • Built in 1997
  • Property use Single Family
  • Lot size 6,613 sqft
  • Effective area 3,534 sqft
  • Building type Residential
  • Rooms 8
  • Bedrooms 5
  • Stories 2
  • Exterior condition Good
  • Trim None
  • Foundation type Slab
  • Roof material Asphalt Shingl
  • Fuel type Gas
  • Air conditioning Central
  • Frontage 65 feet
  • Deck area 120 sqft
  • Attached garage area 750 sqft
  • Heating & Cooling
  • Heat type Forced Air-Duc
  • Exterior Home Features
  • Exterior walls Clapboard
  • Roof type Gable

Features

  • Kitchen quality: Above Average
  • Interior condition: Average

Householders and Tenants for 143 Upland Ave, Newton MA

Possible residents contact details

Person Name Phone Number Additional Info
Christina A Sarkisian
Deepak Nagda
617-877-****
Jyotsna V Nagda Age: 61
617-552-****
Residential status:
Homeowner
Job:
Clerical/White Collar
NAGDA FAMILY TRUST
Nasant M Nagda Age: 63
617-552-****
Vasant M Nagda Age: 63
617-552-****
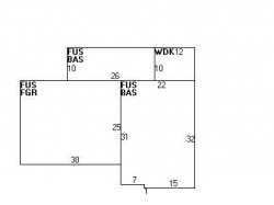
143 Upland Ave, Newton MA  02461-2112 plot plan 143 Upland Ave, Newton MA  02461-2112 floor plan 143 Upland Ave, Newton MA  02461-2112 aerial view

Purchase History

DateEventPriceSourceAgents
08/14/1998 Sold $452,500 Public records
01/02/1997 Sold $168,000 Public records

Cost estimate history

YearAssessment
2016 $788,700
2015 $737,100
2014 $706,200
2013 $706,200
2012 $706,200
2011 $704,500
2010 $718,900
2009 $733,600
2008 $733,600
2007 $761,000
2006$738,800
2005$703,600
2004$647,200
2003$577,900
2002$577,900
2001$495,500
2000$452,500
1999$447,300
1998$168,200
1997$158,700
1996$151,100
1995$131,400
1994$131,400
1993$131,400
1992$141,100

Where is 143 Upland Ave, Newton MA located on map?

Upland Ave Incidents registered in FEMA
(Federal Emergency Management Agency)

To date, we have no information about incidents registered in FEMA in 2025
24 Feb 2007 Gas leak (natural gas or LPG)
Property Use —
Residential street, road or residential driveway

Properties Nearby

Street AddressResidens/Landlords
 

FAQ about the house at 143 Upland Ave, Newton, MA


NOTICE: You may not use RadioAwards or the information it provides to make decisions about employment, credit, housing or any other purpose that would require Fair Credit Reporting Act (FCRA) compliance. RadioAwards is not a Consumer Reporting Agency (CRA) as defined by the FCRA and does not provide consumer reports.