142 Elgin St, Newton MA  02459-2302 exterior

142 Elgin St Newton, MA 02459 / 2302

Residence for Single Family

(UPDATED: 08/10/2025)
  • 5 Beds
  • 5 Baths
  • 6.044 square feet
Property Report

Information about property on 142 Elgin St, Newton MA, 02459-2302. Find out owner contacts, building history, price, neighborhood at Homemetry Address Directory.

Property Details

As is shown in our records this property is based at 142 Elgin Street, Newton, MA.

Facts

  • Built in 1910
  • Property use Single Family
  • Lot size 22,290 sqft
  • Effective area 4,904 sqft
  • Gross building area 6,044 sqft
  • Building type Residential
  • Rooms 10
  • Bedrooms 5
  • Stories 2
  • Exterior condition Average
  • Trim None
  • Foundation type Concrete
  • Roof material Asphalt Shingl
  • Fuel type Gas
  • Air conditioning Central
  • Frontage 160 feet
  • Basement area 1,952 sqft
  • Finished basement area 380 sqft
  • Porch area 304 sqft
  • Basement garages 1
  • Heating & Cooling
  • Heat type Hot Wtr Radiat
  • Exterior Home Features
  • Exterior walls Stucco on Wood
  • Roof type Gable

Features

  • Kitchen quality: Good

Householders and Tenants for 142 Elgin St, Newton MA

Possible residents contact details

Person Name Phone Number Additional Info
Christophe C Maxwell Age: 71
617-244-****
Christopher C Maxwell Age: 71
617-244-****
Residential status:
Homeowner
Job:
Professional/Technical
Elizabeth V Maxwell Age: 38
Residential status:
Homeowner
Katharine A Maxwell Age: 35
Residential status:
Homeowner
Lizzy Maxwell Age: 38
617-244-****
Residential status:
Homeowner
Mary Ann Mclaughlin
Pamela C Woodworth Age: 72
617-244-****
Residential status:
Homeowner
Job:
Professional/Technical
Sarah R Maxwell Age: 41
617-827-****
Susannah Fiering

Businesses

Organization Phone Number Additional Info
Pamela C Woodworth Aia
Industry:
Architectural Services

Possible Businesses

Organization Phone Number Additional Info
REFLECT, INC
Type of Business:
Nonprofit Corporation
Inactive:
20120618
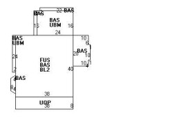
142 Elgin St, Newton MA  02459-2302 plot plan 142 Elgin St, Newton MA  02459-2302 floor plan 142 Elgin St, Newton MA  02459-2302 aerial view

Purchase History

DateEventPriceSourceAgents
07/02/1991 Sold $280,000 Public records

Cost estimate history

YearAssessment
2016 $1,241,300
2015 $1,160,100
2014 $1,100,700
2013 $1,100,700
2012 $1,100,700
2011 $1,048,100
2010 $1,069,500
2009 $1,091,300
2008 $1,091,300
2007 $1,133,800
2006$1,100,800
2005$1,048,400
2004$945,300
2003$842,200
2002$842,200
2001$610,500
2000$557,500
1999$507,300
1998$509,700
1997$485,400
1996$462,300
1995$440,100
1994$417,400
1993$285,900
1992$319,900

Where is 142 Elgin St, Newton MA located on map?

Elgin St Incidents registered in FEMA
(Federal Emergency Management Agency)

To date, we have no information about incidents registered in FEMA in 2025
19 Sep 2003 Rescue, emergency medical call (EMS) call, other
Property Use —
1 or 2 family dwelling

Properties Nearby

Street AddressResidens/Landlords
 

FAQ about the house at 142 Elgin St, Newton, MA


NOTICE: You may not use RadioAwards or the information it provides to make decisions about employment, credit, housing or any other purpose that would require Fair Credit Reporting Act (FCRA) compliance. RadioAwards is not a Consumer Reporting Agency (CRA) as defined by the FCRA and does not provide consumer reports.