131 Stanley Rd, Newton MA  02468-2315 exterior

131 Stanley Rd Newton, MA 02468 / 2315

Residence for Single Family

(UPDATED: 09/23/2025)
  • 3 Beds
  • 2 Baths
  • 4.038 square feet
Property Report

Information about property on 131 Stanley Rd, Newton MA, 02468-2315. Find out owner contacts, building history, price, neighborhood at Homemetry Address Directory.

Property Details

This is a single-family residence, which is situated at 131 Stanley Rd, Newton, MA.

Facts

  • Built in 1950
  • Property use Single Family
  • Lot size 14,595 sqft
  • Effective area 3,313 sqft
  • Gross building area 4,038 sqft
  • Building type Residential
  • Rooms 7
  • Bedrooms 3
  • Exterior condition Average
  • Trim Half Wall
  • Foundation type Concrete
  • Roof material Asphalt Shingl
  • Fuel type Gas
  • Air conditioning Central
  • Frontage 140 feet
  • Basement area 1,450 sqft
  • Finished basement area 725 sqft
  • Porch area 30 sqft
  • Deck area 166 sqft
  • Attached garage area 576 sqft
  • Heating & Cooling
  • Heat type Hot Wtr Radiat
  • Exterior Home Features
  • Exterior walls Vinyl Siding
  • Roof type Gable

Householders and Tenants for 131 Stanley Rd, Newton MA

Possible residents contact details

Person Name Phone Number Additional Info
Beverly B Shlager Age: 92
617-527-****
Residential status:
Homeowner
Job:
Food Preparation and Serving Related Occupations
Frank Mahoney
Gertrude Mahoney
Helen H Aronson
Lauren G Shlager Age: 63
617-527-****
Residential status:
Homeowner
Job:
Food Preparation and Serving Related Occupations
Norman L Shlager Age: 95
617-527-****
Residential status:
Homeowner
Job:
Homemaker
Norman Shlanger
617-527-****
SHLAGER REALTY TRUST /S TRS
Samuel Aronson
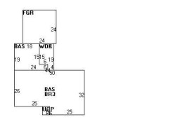
131 Stanley Rd, Newton MA  02468-2315 plot plan 131 Stanley Rd, Newton MA  02468-2315 floor plan 131 Stanley Rd, Newton MA  02468-2315 aerial view

Cost estimate history

YearAssessment
2016 $714,900
2015 $668,100
2014 $636,900
2013 $636,900
2012 $636,900
2011 $695,400
2010 $709,600
2009 $713,700
2008 $713,700
2007 $728,800
2006$707,600
2005$673,900
2004$629,200
2003$561,800
2002$561,800
2001$449,800
2000$410,800
1999$373,800
1998$310,700
1997$310,700
1996$295,900
1995$255,900
1994$243,700
1993$243,700
1992$268,400

Where is 131 Stanley Rd, Newton MA located on map?

Building Permits

To date, we have no information about building permits in 2025
Sep 11, 2007
Description: Strip and re-roof house
  • Valuation: $925,000
  • Fee: $172.05 paid to City of Newton, Massachusetts
  • Parcel #: 54002 0004
  • Permit #: 07090227

Properties Nearby

Street AddressResidens/Landlords
15 Stanley Rd, Newton, MA 02468-2337
Single Family
  • 3 beds
  • 2.5 baths
  • 4,509 sqft
  • Built in 1950
Patricia A Mcnamara, Patty A Heller
 

FAQ about the house at 131 Stanley Rd, Newton, MA


NOTICE: You may not use RadioAwards or the information it provides to make decisions about employment, credit, housing or any other purpose that would require Fair Credit Reporting Act (FCRA) compliance. RadioAwards is not a Consumer Reporting Agency (CRA) as defined by the FCRA and does not provide consumer reports.