122 Waltham St, Newton MA  02465-1330 exterior

122 Waltham St Newton, MA 02465 / 1330

Residence for Single Family

(UPDATED: 07/14/2025)
  • 4 Beds
  • 3 Baths
  • 3.758 square feet
Property Report

Information about property on 122 Waltham St, Newton MA, 02465-1330. Find out owner contacts, building history, price, neighborhood at Homemetry Address Directory.

Property Details

A home at 122 Waltham Street, Newton, Massachusetts.

Facts

  • Built in 1954
  • Property use Two Family
  • Lot size 6,223 sqft
  • Effective area 3,083 sqft
  • Gross building area 3,758 sqft
  • Building type Residential
  • Rooms 10
  • Bedrooms 4
  • Bathrooms 3
  • Stories 2
  • Exterior condition Average
  • Trim None
  • Foundation type Concrete
  • Roof material Asphalt Shingl
  • Fuel type Oil
  • Air conditioning Unit/AC
  • Frontage 44 feet
  • Basement area 1,008 sqft
  • Finished basement area 333 sqft
  • Shed area 80 sqft
  • Porch area 158 sqft
  • Deck area 324 sqft
  • Heating & Cooling
  • Heat type Hot Wtr Radiat
  • Exterior Home Features
  • Exterior walls Wood Shingle
  • Roof type Hip

Features

  • Interior condition: Good

Householders and Tenants for 122 Waltham St, Newton MA

Possible residents contact details

Person Name Phone Number Additional Info
Ann Sheehan
617-795-****
Residential status:
Renter
Job:
Machine Operators, Assemblers, and Inspectors Occupations
Carolann Tucci
317-783-****
Daniel B Salvucci
Helen S Skolnick Age: 58
617-630-****
Jeffrey G Bradley Age: 51
617-527-****
Jennifer F Godek Age: 56
508-875-****
Jennifer L Bradley Age: 50
Jennifer L Wheeler Age: 50
Lara Valentine Age: 56
Lesley Bermingham
508-877-****
Megan O'reilly Age: 41
P Klay
617-630-****
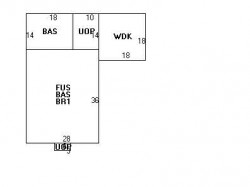
122 Waltham St, Newton MA  02465-1330 plot plan 122 Waltham St, Newton MA  02465-1330 floor plan 122 Waltham St, Newton MA  02465-1330 aerial view

Cost estimate history

YearAssessment
2016 $580,300
2015 $542,300
2014 $515,600
2013 $515,600
2012 $515,600
2011 $524,200
2010 $481,900
2009 $507,300
2008 $507,300
2007 $517,800
2006$502,700
2005$488,100
2004$414,500
2003$363,600
2002$363,600
2001$350,300
2000$319,900
1999$291,100
1998$244,900
1997$231,000
1996$220,000
1995$210,300
1994$210,300
1993$210,300
1992$231,600

Where is 122 Waltham St, Newton MA located on map?

Waltham St Fire Incident History

To date, we have no information about fire incidents in 2025
04 May 2017 Building fires
Property Use —
Auditorium or concert hall
Area of Origin —
Stage area - performance, basketball court, boxing
First Ignition —
Floor covering or rug/carpet/mat
Heat Source —
Heat from other open flame or smoking materials
26 Jun 2016 Outside rubbish, trash or waste fire
Property Use —
Business office
Area of Origin —
Highway, parking lot, street: on or near
First Ignition —
Rubbish, trash, or waste
Heat Source —
Cigarette
08 Jan 2012 Forest, woods or wildland fire
Property Use —
Open land or field
Area of Origin —
Wildland, woods
First Ignition —
Light vegetation - not crop, including grass
Heat Source —
Heat from other open flame or smoking materials
19 Jul 2011 Outside equipment fire
Property Use —
Playground
Area of Origin —
Outside area, other
First Ignition —
Adornment, recreational material, signs, other
Heat Source —
Match

View more

Waltham St Incidents registered in FEMA
(Federal Emergency Management Agency)

To date, we have no information about incidents registered in FEMA in 2025
01 May 2013 Gas leak (natural gas or LPG)
Property Use —
Day care, in commercial property
23 Jan 2012 Overheated motor
Property Use —
Post office or mailing firms
09 Feb 2011 Gas leak (natural gas or LPG)
Property Use —
Street, other
16 Jan 2011 Arcing, shorted electrical equipment
Property Use —
Vehicle parking area

View more

Properties Nearby

Street AddressResidens/Landlords
79 Waltham St, Newton, MA 02465-1327
Two Family
  • 4 beds
  • 4,938 sqft
  • Built in 1922
Ann Brooks, Paul Brooks
95 Waltham St, Newton, MA 02465-1327
Two Family
  • 3 beds
  • 3 baths
  • 5,235 sqft
  • Built in 1930
Frank R Dargento, Gloria Dargento
121 Waltham St, Newton, MA 02465-1331
Two Family
  • 6 beds
  • 4 baths
  • 4,934 sqft
  • Built in 1922
J Daniel Okeefe, Joseph D Okeefe
182 Waltham St, Newton, MA 02465-1333
Two Family
  • 4 beds
  • 4,275 sqft
  • Built in 1925
185 Waltham St, Newton, MA 02465-1353
Two Family
  • 8 beds
  • 3 baths
  • 5,224 sqft
  • Built in 1945
Cynthia L Curtis, Helena R Curtis
188 Waltham St, Newton, MA 02465-1333
Two Family
  • 4 beds
  • 2,692 sqft
  • Built in 1950
David Budnick, Yinghong Cheng
191 Waltham St, Newton, MA 02465-1353
Two Family
  • 6 beds
  • 3,287 sqft
  • Built in 1930
BIRDBALL BASEBALL CAMPS LLC, Casey I Fein
 

FAQ about the house at 122 Waltham St, Newton, MA


NOTICE: You may not use RadioAwards or the information it provides to make decisions about employment, credit, housing or any other purpose that would require Fair Credit Reporting Act (FCRA) compliance. RadioAwards is not a Consumer Reporting Agency (CRA) as defined by the FCRA and does not provide consumer reports.