117 Brackett Rd, Newton MA  02458-2613 exterior

117 Brackett Rd Newton, MA 02458 / 2613

Residence for Single Family

(UPDATED: 09/09/2025)
  • 4 Beds
  • 2 Baths
  • 3.809 square feet
Property Report

Information about property on 117 Brackett Rd, Newton MA, 02458-2613. Find out owner contacts, building history, price, neighborhood at Homemetry Address Directory.

Property Details

At 117 Brackett Road, Newton, MA placed a single-family home.

Facts

  • Built in 1920
  • Property use Single Family
  • Lot size 12,560 sqft
  • Effective area 3,490 sqft
  • Gross building area 3,809 sqft
  • Building type Residential
  • Rooms 8
  • Bedrooms 4
  • Bathrooms 2
  • Stories 1,75
  • Exterior condition Average
  • Trim None
  • Foundation type Concrete
  • Roof material Asphalt Shingl
  • Fuel type Gas
  • Fireplaces 1
  • Frontage 55 feet
  • Basement area 1,054 sqft
  • Enclosed porch area 63 sqft
  • Attached garage area 360 sqft
  • Heating & Cooling
  • Heat type Steam
  • Exterior Home Features
  • Exterior walls Vinyl Siding
  • Roof type Gable

Householders and Tenants for 117 Brackett Rd, Newton MA

Possible residents contact details

Person Name Phone Number Additional Info
ANDLER ALAN &AL EXORS
Beatrice Katz Age: 104
Isaac Sadovnik Age: 72
617-763-****
Residential status:
Homeowner
Job:
Professional/Technical
Joan C Sadovnik Age: 71
617-965-****
Residential status:
Homeowner
KATZ RAPHAEL J S EXORS
ROSEMAN HERBERT &AL EXORS
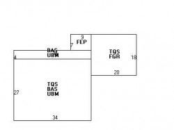
117 Brackett Rd, Newton MA  02458-2613 plot plan 117 Brackett Rd, Newton MA  02458-2613 floor plan 117 Brackett Rd, Newton MA  02458-2613 aerial view

Purchase History

DateEventPriceSourceAgents
06/28/1991 Sold $279,000 Public records

Cost estimate history

YearAssessment
2016 $767,800
2015 $717,600
2014 $682,100
2013 $682,100
2012 $682,100
2011 $682,900
2010 $696,800
2009 $711,000
2008 $711,000
2007 $738,500
2006$717,000
2005$682,900
2004$636,400
2003$568,200
2002$568,200
2001$474,000
2000$432,900
1999$393,900
1998$333,500
1997$327,000
1996$311,400
1995$302,800
1994$273,300
1993$273,300
1992$278,200

Where is 117 Brackett Rd, Newton MA located on map?

Brackett Rd Incidents registered in FEMA
(Federal Emergency Management Agency)

To date, we have no information about incidents registered in FEMA in 2025
14 Jan 2008 Electrical wiring/equipment problem, other
Property Use —
Residential street, road or residential driveway

Properties Nearby

Street AddressResidens/Landlords
 

FAQ about the house at 117 Brackett Rd, Newton, MA


NOTICE: You may not use RadioAwards or the information it provides to make decisions about employment, credit, housing or any other purpose that would require Fair Credit Reporting Act (FCRA) compliance. RadioAwards is not a Consumer Reporting Agency (CRA) as defined by the FCRA and does not provide consumer reports.