116 Upland Ave Newton, MA 02461 / 2145

Residence for Single Family

(UPDATED: 08/22/2025)
  • 2 Beds
  • 1 Baths
  • 1.744 square feet
Sold Feb 2022
$2,200,000
Property Report

Information about property on 116 Upland Ave, Newton MA, 02461-2145. Find out owner contacts, building history, price, neighborhood at Homemetry Address Directory.

Property Details

As is shown in our records this property is placed at 116 Upland Ave, Newton, MA.

Facts

  • Built in 1939
  • Property use Single Family
  • Lot size 6,490 sqft
  • Effective area 1,744 sqft
  • Building type Residential
  • Rooms 5
  • Bedrooms 2
  • Stories 1
  • Exterior condition Average
  • Trim None
  • Foundation type Concrete
  • Roof material Asphalt Shingl
  • Fuel type Oil
  • Frontage 76 feet
  • Basement area 804 sqft
  • Porch area 136 sqft
  • Heating & Cooling
  • Heat type Steam
  • Exterior Home Features
  • Exterior walls Vinyl Siding
  • Roof type Gable

Features

  • Kitchen quality: Below Average

Householders and Tenants for 116 Upland Ave, Newton MA

Possible residents contact details

Person Name Phone Number Additional Info
AUGER-CHIPELLO DANIELLE &AL
Alice A Balam
Brenda E Balam
Brenda E Percarpio
Christopher J Chipello
Linda S Klein Age: 79
Residential status:
Homeowner
Job:
Administration/Managerial
Mildred P Klein
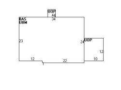
116 Upland Ave, Newton MA  02461-2145 plot plan 116 Upland Ave, Newton MA  02461-2145 floor plan 116 Upland Ave, Newton MA  02461-2145 aerial view

Purchase History

DateEventPriceSourceAgents
07/24/1990 Sold $185,000 Public records

Cost estimate history

YearAssessment
2016 $416,000
2015 $388,800
2014 $367,100
2013 $367,100
2012 $367,100
2011 $364,800
2010 $372,200
2009 $379,800
2008 $379,800
2007 $392,300
2006$380,900
2005$362,800
2004$332,400
2003$296,800
2002$296,800
2001$253,200
2000$231,200
1999$210,400
1998$193,600
1997$182,600
1996$173,900
1995$158,200
1994$158,200
1993$158,200
1992$163,800

Where is 116 Upland Ave, Newton MA located on map?

Market Activities

To date, we have no information about market activities in 2025
Feb 2022 Sold
116 Upland Ave
Price history :
  • Single Family
  • 3,500 sqft
  • 4 beds
  • 5 baths
Apr 2021 Sold
116 Upland Ave
Price history :
$2M
  • Single Family
  • 3,500 sqft
  • 4 beds
  • 5 baths

View more

Upland Ave Incidents registered in FEMA
(Federal Emergency Management Agency)

To date, we have no information about incidents registered in FEMA in 2025
24 Feb 2007 Gas leak (natural gas or LPG)
Property Use —
Residential street, road or residential driveway

Properties Nearby

Street AddressResidens/Landlords
 

FAQ about the house at 116 Upland Ave, Newton, MA


NOTICE: You may not use RadioAwards or the information it provides to make decisions about employment, credit, housing or any other purpose that would require Fair Credit Reporting Act (FCRA) compliance. RadioAwards is not a Consumer Reporting Agency (CRA) as defined by the FCRA and does not provide consumer reports.