11 Craigie Ter Newton, MA 02460 / 2106

Residence for Single Family

(UPDATED: 09/07/2025)
  • 4 Beds
  • 2 Baths
  • 4.188 square feet
Sold Feb 2022
$1,270,000
Property Report

Information about property on 11 Craigie Ter, Newton MA, 02460-2106. Find out owner contacts, building history, price, neighborhood at Homemetry Address Directory.

Property Details

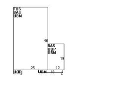
This property has more than forty-one hundred square feet of effective area and sits on 0,15 acres.

Facts

  • Built in 1928
  • Property use Two Family
  • Lot size 6,750 sqft
  • Effective area 4,188 sqft
  • Building type Residential
  • Rooms 11
  • Bedrooms 4
  • Stories 2
  • Exterior condition Average
  • Trim None
  • Foundation type Concrete
  • Roof material Asphalt Shingl
  • Fuel type Gas
  • Frontage 70 feet
  • Basement area 1,414 sqft
  • Porch area 246 sqft
  • Heating & Cooling
  • Heat type Hot Wtr Radiat
  • Exterior Home Features
  • Exterior walls Wood Shingle
  • Roof type Hip

Householders and Tenants for 11 Craigie Ter, Newton MA

Possible residents contact details

Person Name Phone Number Additional Info
Abraham P Zimelman
Charlotte Chipman
Clara I Zimelman
Jordan E Jones Age: 43
S L Demarco
617-965-****
Susan D Marco Age: 69
617-965-****
Residential status:
Homeowner
Susan L Demarco Age: 69
617-965-****
Vincent J Tuscher

Businesses

Organization Phone Number Additional Info
Promotions In Motion
Industry:
Ret Groceries
11 Craigie Ter, Newton MA  02460-2106 plot plan 11 Craigie Ter, Newton MA  02460-2106 floor plan 11 Craigie Ter, Newton MA  02460-2106 aerial view

Cost estimate history

YearAssessment
2016 $654,300
2015 $611,500
2014 $586,500
2013 $586,500
2012 $586,500
2011 $594,400
2010 $606,500
2009 $638,400
2008 $638,400
2007 $655,400
2006$636,300
2005$617,800
2004$526,000
2003$461,400
2002$461,400
2001$410,100
2000$374,500
1999$340,800
1998$301,400
1997$276,500
1996$263,300
1995$252,900
1994$252,900
1993$252,900
1992$251,600

Where is 11 Craigie Ter, Newton MA located on map?

Market Activities

To date, we have no information about market activities in 2025
Feb 2022 Sold
11 Craigie Ter
Price history :
  • Multi-Family
  • 6,534 sqft
  • 4 beds
  • 2 baths
Sep 2018 Sold
11 Craigie Ter
Price history :

View more

Properties Nearby

Street AddressResidens/Landlords
Margaret M Carson, Andrew Dinoia
David Heidt
9 Craigie Ter, Newton, MA 02460-2106
Two Family
  • 4 beds
  • 2 baths
  • 4,188 sqft
  • Built in 1928
Denis Gray, Stilista LLC
10 Craigie Ter, Newton, MA 02460-2112
Two Family
  • 4 beds
  • 5,748 sqft
  • Built in 1930
V Alarcon, C Cashel
12 Craigie Ter, Newton, MA 02460-2112
Two Family
  • 4 beds
  • 5,748 sqft
  • Built in 1930
E & D REALTY TRUST, Edward Tr Horlink
Sarah Chace
Rebecca Upham, William B Viner
Kathy F Hanlan, Bruce G Thayer
 

FAQ about the house at 11 Craigie Ter, Newton, MA


NOTICE: You may not use RadioAwards or the information it provides to make decisions about employment, credit, housing or any other purpose that would require Fair Credit Reporting Act (FCRA) compliance. RadioAwards is not a Consumer Reporting Agency (CRA) as defined by the FCRA and does not provide consumer reports.