108 Morton St, Newton MA  02459-1012 exterior

108 Morton St Newton, MA 02459 / 1012

Residence for Single Family

(UPDATED: 09/22/2025)
  • 3 Beds
  • 2 Baths
  • 3.258 square feet
Property Report

Information about property on 108 Morton St, Newton MA, 02459-1012. Find out owner contacts, building history, price, neighborhood at Homemetry Address Directory.

Property Details

Constructed in the twenties, this property has more than twenty-six hundred square feet of effective area and sits on 0,17 acres.

Facts

  • Built in 1925
  • Property use Single Family
  • Lot size 7,260 sqft
  • Effective area 2,658 sqft
  • Gross building area 3,258 sqft
  • Building type Residential
  • Rooms 9
  • Bedrooms 3
  • Stories 2
  • Exterior condition Average
  • Trim None
  • Foundation type Concrete
  • Roof material Asphalt Shingl
  • Fuel type Oil
  • Frontage 80 feet
  • Basement area 896 sqft
  • Finished basement area 296 sqft
  • Shed area 112 sqft
  • Porch area 36 sqft
  • Deck area 248 sqft
  • Detached garage area 216 sqft
  • Heating & Cooling
  • Heat type Steam
  • Exterior Home Features
  • Exterior walls Wood Shingle
  • Roof type Gambrel

Householders and Tenants for 108 Morton St, Newton MA

Possible residents contact details

Person Name Phone Number Additional Info
ELLMAN IRREVOCABLE TRUST
ELLMAN MURIEL LIFE EST
ELLMAN NORTON LIFE EST
ELLMAN REALTY TRUST
ELLMAN REALTY TRUST /S TRS
Lawrence D Tr Ellman
Matthew Ellman
617-630-****
Muriel Tr Ellman Age: 95
617-332-****
Residential status:
Homeowner
Job:
Clerical/White Collar
Norton E Ellman Age: 98
617-332-****
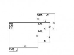
108 Morton St, Newton MA  02459-1012 plot plan 108 Morton St, Newton MA  02459-1012 floor plan 108 Morton St, Newton MA  02459-1012 aerial view

Cost estimate history

YearAssessment
2016 $718,200
2015 $671,200
2014 $641,900
2013 $641,900
2012 $641,900
2011 $639,300
2010 $642,600
2009 $655,700
2008 $655,700
2007 $699,500
2006$679,100
2005$646,800
2004$654,500
2003$584,400
2002$584,400
2001$523,500
2000$478,100
1999$435,000
1998$388,900
1997$356,700
1996$339,700
1995$293,000
1994$293,000
1993$293,000
1992$300,700

Where is 108 Morton St, Newton MA located on map?

Market Activities

To date, we have no information about market activities in 2025
Jun 2023 Recent Rent
108 Morton St
Price history :
  • Single Family
  • 2,860 sqft
  • 5 beds
  • 3 baths
May 2023 Sold
108 Morton St
Price history :
  • Single Family
  • 2,860 sqft
  • 5 beds
  • 3 baths
Apr 2023 Sold
108 Morton St
Price history :
  • Single Family
  • 2,860 sqft
  • 5 beds
  • 3 baths

View more

Properties Nearby

Street AddressResidens/Landlords
11 Morton St, Newton, MA 02459-1013
Single Family
  • 3 beds
  • 1.5 baths
  • 2,682 sqft
  • Built in 1935
ANNALEE TARDIFF FAMILY TRUST, TIMOTHY J TARDIFF FAMILY TRUST
17 Morton St, Newton, MA 02459-1013
Single Family
  • 3 beds
  • 1 bath
  • 3,179 sqft
  • Built in 1927
Dorothy A Bell, J L Bell, Editorial Consulting
 

FAQ about the house at 108 Morton St, Newton, MA


NOTICE: You may not use RadioAwards or the information it provides to make decisions about employment, credit, housing or any other purpose that would require Fair Credit Reporting Act (FCRA) compliance. RadioAwards is not a Consumer Reporting Agency (CRA) as defined by the FCRA and does not provide consumer reports.