Purchase History
| Date | Event | Price | Source | Agents |
|---|---|---|---|---|
| 07/30/1999 | Sold | $330,000 | Public records |
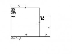
Cost estimate history
| Year | Assessment | ||
|---|---|---|---|
| 2016 | $493,900 | ||
| 2015 | $461,600 | ||
| 2014 | $446,000 | ||
| 2013 | $446,000 | ||
| 2012 | $446,000 | ||
| 2011 | $441,400 | ||
| 2010 | $450,400 | ||
| 2009 | $423,800 | ||
| 2008 | $423,800 | ||
| 2007 | $459,700 | ||
| 2006 | $446,300 | ||
| 2005 | $425,000 | ||
| 2004 | $402,600 | ||
| 2003 | $349,500 | ||
| 2002 | $349,500 | ||
| 2001 | $289,200 | ||
| 2000 | $264,100 | ||
| 1999 | $240,300 | ||
| 1998 | $225,200 | ||
| 1997 | $214,500 | ||
| 1996 | $204,300 | ||
| 1995 | $179,100 | ||
| 1994 | $179,100 | ||
| 1993 | $179,100 | ||
| 1992 | $193,300 |
Mount Vernon St Incidents registered in FEMA
(Federal Emergency Management Agency)
To date, we have no information about incidents registered in FEMA in 2025
22 Nov 2009
Carbon monoxide incident
Property Use —
1 or 2 family dwelling
22 Jun 2003
Smoke detector activation due to malfunction
Property Use —
Mental retardation/development disability facility
21 Mar 2003
Smoke or odor removal
Property Use —
Mental retardation/development disability facility
07 Mar 2002
Cooking fire, confined to container
Property Use —
1 or 2 family dwelling
Properties Nearby
| Street Address | Residens/Landlords |
|---|


