107 Edinboro St, Newton MA  02460-1301 exterior

107 Edinboro St Newton, MA 02460 / 1301

Residence for Single Family

(UPDATED: 09/24/2025)
  • 3 Beds
  • 1 Baths
  • 2.592 square feet
Property Report

Information about property on 107 Edinboro St, Newton MA, 02460-1301. Find out owner contacts, building history, price, neighborhood at Homemetry Address Directory.

Property Details

This property with near twenty-one hundred square feet of effective area on 0,14 acres was originally built in 1840.

Facts

  • Built in 1840
  • Property use Single Family
  • Lot size 6,000 sqft
  • Effective area 2,088 sqft
  • Gross building area 2,592 sqft
  • Building type Residential
  • Rooms 7
  • Bedrooms 3
  • Stories 2
  • Exterior condition Average
  • Trim None
  • Foundation type Brick/Fldstone
  • Roof material Asphalt Shingl
  • Fuel type Gas
  • Frontage 60 feet
  • Basement area 672 sqft
  • Finished basement area 168 sqft
  • Deck area 256 sqft
  • Heating & Cooling
  • Heat type Hot Water
  • Exterior Home Features
  • Exterior walls Vinyl Siding
  • Roof type Hip

Householders and Tenants for 107 Edinboro St, Newton MA

Possible residents contact details

Person Name Phone Number Additional Info
ANTONIETTA BONADIO REVOCABLE LIVING TRUST
Antoietta Daycare
617-928-****
Antoinetta Bonadio
Antonie Bonadia
617-928-****
Antonie Bonadio Age: 69
617-928-****
Antonietta Bonadia Age: 69
617-928-****
Residential status:
Homeowner
Antonietta Tr Bonadio Age: 69
617-928-****
Cecelia Lee Doucette Age: 62
617-969-****
Erick Brunache
James A Doucette
Michael Bonadio Age: 77
617-928-****
Nicole Brunache
Rita M Doucette
S Bonadio Age: 48
617-928-****
Stephanie G Bonadio Age: 48
617-928-****
Residential status:
Homeowner
Stephen J Doucette
V Bonadio Age: 50
617-928-****
Victoria Bonadio Age: 50
617-928-****

Businesses

Organization Phone Number Additional Info
Antoietta Daycare
Industry:
Child Day Care Services
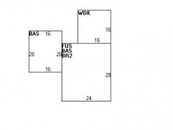
107 Edinboro St, Newton MA  02460-1301 plot plan 107 Edinboro St, Newton MA  02460-1301 floor plan 107 Edinboro St, Newton MA  02460-1301 aerial view

Purchase History

DateEventPriceSourceAgents
04/12/1996 Sold $224,000 Public records

Cost estimate history

YearAssessment
2016 $500,400
2015 $467,700
2014 $446,400
2013 $446,400
2012 $446,400
2011 $446,600
2010 $455,700
2009 $465,000
2008 $465,000
2007 $481,600
2006$467,600
2005$445,300
2004$404,800
2003$361,400
2002$361,400
2001$303,800
2000$277,400
1999$252,400
1998$242,000
1997$214,200
1996$204,000
1995$173,200
1994$173,200
1993$168,000
1992$179,800

Where is 107 Edinboro St, Newton MA located on map?

Properties Nearby

Street AddressResidens/Landlords
 

FAQ about the house at 107 Edinboro St, Newton, MA


NOTICE: You may not use RadioAwards or the information it provides to make decisions about employment, credit, housing or any other purpose that would require Fair Credit Reporting Act (FCRA) compliance. RadioAwards is not a Consumer Reporting Agency (CRA) as defined by the FCRA and does not provide consumer reports.