Cost estimate history
| Year | Assessment | ||
|---|---|---|---|
| 2016 | $688,700 | ||
| 2015 | $643,600 | ||
| 2014 | $610,000 | ||
| 2013 | $610,000 | ||
| 2012 | $610,000 | ||
| 2011 | $599,700 | ||
| 2010 | $611,900 | ||
| 2009 | $624,400 | ||
| 2008 | $624,400 | ||
| 2007 | $630,700 | ||
| 2006 | $612,300 | ||
| 2005 | $583,100 | ||
| 2004 | $540,800 | ||
| 2003 | $482,900 | ||
| 2002 | $482,900 | ||
| 2001 | $382,800 | ||
| 2000 | $349,600 | ||
| 1999 | $318,100 | ||
| 1998 | $287,200 | ||
| 1997 | $270,900 | ||
| 1996 | $258,000 | ||
| 1995 | $228,500 | ||
| 1994 | $224,000 | ||
| 1993 | $224,000 | ||
| 1992 | $232,700 |
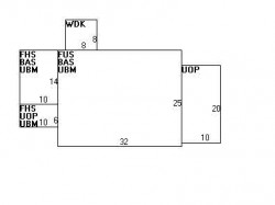
Building Permits
To date, we have no information about building permits in 2025
Apr 19, 2016
Description: Remove existing aluminum and wood siding and replace with vinyl
- Valuation: $500,000
- Fee: $100.00 paid to City of Newton, Massachusetts
- Parcel #: 21018 0010
- Permit #: 16040566
Properties Nearby
| Street Address | Residens/Landlords | |
|---|---|---|
12 Fair Oaks Ave, Newton, MA 02460-1217 Single Family
|
Irving Dick, Rhonda I Dick | |
15 Fair Oaks Ave, Newton, MA 02460-1216 Single Family
|
William H Raymond, Joanne M Raymond | |
16 Fair Oaks Ave, Newton, MA 02460-1217 Single Family
|
Alisa Vitti, Antoinette M Vitti | |
22 Fair Oaks Ave, Newton, MA 02460-1217 Single Family
|
Jing Cui, Pengsheng Ni | |
23 Fair Oaks Ave, Newton, MA 02460-1216 Single Family
|
Maureen G Donahue, Michael J Ruane | |
100 Fair Oaks Ave, Newton, MA 02460-1153 Single Family
|
Clare H Moschella, Carmine A Moschella | |
106 Fair Oaks Ave, Newton, MA 02460-1153 Single Family
|
ELEANOR M ELICONE IRREVOCABLE TRUST, Janet Tr Elicone | |
110 Fair Oaks Ave, Newton, MA 02460-1153 Single Family
|
SALEH SHANNON ANN, Milad M Saleh | |
116 Fair Oaks Ave, Newton, MA 02460-1153 Single Family
|
Craig E Forman, Linda S Forman | |
119 Fair Oaks Ave, Newton, MA 02460-1154 Single Family
|
Ruth Diamond, Smuel Diamond |


