Purchase History
| Date | Event | Price | Source | Agents |
|---|---|---|---|---|
| 03/19/1999 | Sold | $269,000 | Public records | |
| 09/29/1998 | Sold | $137,000 | Public records | |
| 06/12/1998 | Sold | $95,000 | Public records |
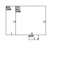
PURCHASE HISTORY 1010 Boylston St, Newton MA
Cost estimate history
| Year | Assessment | ||
|---|---|---|---|
| 2016 | $414,700 | ||
| 2015 | $387,600 | ||
| 2014 | $368,500 | ||
| 2013 | $368,500 | ||
| 2012 | $368,500 | ||
| 2011 | $358,300 | ||
| 2010 | $365,600 | ||
| 2009 | $373,100 | ||
| 2008 | $373,100 | ||
| 2007 | $372,400 | ||
| 2006 | $361,600 | ||
| 2005 | $344,400 | ||
| 2004 | $324,000 | ||
| 2003 | $289,300 | ||
| 2002 | $289,300 | ||
| 2001 | $270,800 | ||
| 2000 | $247,300 | ||
| 1999 | $192,200 | ||
| 1998 | $155,400 | ||
| 1997 | $142,600 | ||
| 1996 | $135,800 | ||
| 1995 | $135,800 | ||
| 1994 | $135,800 | ||
| 1993 | $135,800 | ||
| 1992 | $147,300 |
Boylston St Fire Incident History
To date, we have no information about fire incidents in 2025
18 Oct 2017
Brush, or brush and grass mixture fire
Property Use —
Highway or divided highway
Area of Origin —
Outside area, other
24 May 2015
Brush, or brush and grass mixture fire
Property Use —
Vehicle parking area
Area of Origin —
Outside area, other
First Ignition —
Fertilizer
Heat Source —
Cigarette
12 Jul 2012
Brush, or brush and grass mixture fire
Property Use —
Vehicle parking area
Area of Origin —
Vehicle area, other
First Ignition —
Chips, including wood chips
08 Dec 2011
Building fires
Property Use —
Multifamily dwellings
Area of Origin —
Cooking area, kitchen
Heat Source —
Radiated, conducted heat from operating equipment
Boylston St Incidents registered in FEMA
(Federal Emergency Management Agency)
To date, we have no information about incidents registered in FEMA in 2025
18 Nov 2015
Electrical wiring/equipment problem, other
Property Use —
Multifamily dwellings
23 Aug 2015
Gas leak (natural gas or LPG)
Property Use —
Multifamily dwellings
25 Jul 2015
Gas leak (natural gas or LPG)
Property Use —
Multifamily dwellings
21 Sep 2014
Arcing, shorted electrical equipment
Boylston St Crime Incidents History
To date, we have no information about crime incidents in 2025
10 Oct 2013
Traffic
800 Block Boylston St, Newton MA
Case Number —
2013-0005317
Description —
ACC.MULTI-VEHICLE/INJURY
12 May 2013
Traffic
900 Block Boylston St, Newton MA
Case Number —
2013-0002452
Description —
TRAFFIC OFFENSES
15 Apr 2013
Traffic
800 Block Boylston St, Newton MA
Case Number —
2013-0001986
Description —
ACC. MULTI VEHICLE/PROPERTY
26 Feb 2012
Property Crime
500 Block Boylston St, Newton MA
Case Number —
2012-0001066
Description —
MALICIOUS-DAMAGE/BUILDING
Properties Nearby
| Street Address | Residens/Landlords |
|---|


