10 Stonewood Dr Newton, MA 02459 / 2701

Residence for Single Family

(UPDATED: 07/07/2025)
  • 4 Beds
  • 3 Baths
  • 5.684 square feet
Property Report

Information about property on 10 Stonewood Dr, Newton MA, 02459-2701. Find out owner contacts, building history, price, neighborhood at Homemetry Address Directory.

Property Details

At 10 Stonewood Drive, Newton, MA stands a property, which was built in 1969.

Facts

  • Built in 1969
  • Property use Single Family
  • Lot size 25,000 sqft
  • Effective area 5,684 sqft
  • Building type Residential
  • Rooms 7
  • Bedrooms 3
  • Stories 1
  • Exterior condition Average
  • Trim Half Wall
  • Foundation type Concrete
  • Roof material Asphalt Shingl
  • Fuel type Gas
  • Air conditioning Central
  • Frontage 190 feet
  • Basement area 3,568 sqft
  • Finished basement area 700 sqft
  • Shed area 72 sqft
  • Swimming pool HI QUAL INGR
  • Basement garages 2
  • Heating & Cooling
  • Heat type Hot Water
  • Exterior Home Features
  • Exterior walls Wood Shingle
  • Roof type Gable

Householders and Tenants for 10 Stonewood Dr, Newton MA

Possible residents contact details

Person Name Phone Number Additional Info
Eli A Etscovitz Age: 102
617-527-****
Irina Kogan
617-969-****
Residential status:
Homeowner
Job:
Medical Professional
Irma F Etscovitz Age: 100
617-527-****
Serguei Borkov

Possible Businesses

Organization Phone Number Additional Info
ELI A. ETSCOVITZ, M. D., INC
Type of Business:
Professional Corporation
Inactive:
19971216
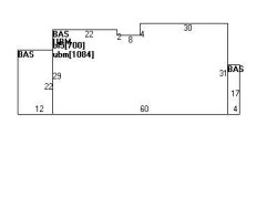
10 Stonewood Dr, Newton MA  02459-2701 plot plan 10 Stonewood Dr, Newton MA  02459-2701 floor plan 10 Stonewood Dr, Newton MA  02459-2701 aerial view

Purchase History

DateEventPriceSourceAgents
06/30/2009 Sold $970,000 Public records

Cost estimate history

YearAssessment
2016 $1,012,600
2015 $946,400
2014 $901,100
2013 $901,100
2012 $901,100
2011 $904,100
2010 $922,600
2009 $941,400
2008 $941,400
2007 $991,000
2006$962,100
2005$916,300
2004$849,500
2003$758,500
2002$758,500
2001$620,400
2000$566,600
1999$515,600
1998$477,800
1997$477,800
1996$455,000
1995$473,100
1994$434,000
1993$434,000
1992$455,300

Where is 10 Stonewood Dr, Newton MA located on map?

Market Activities

To date, we have no information about market activities in 2025
Sep 2023 Recent Rent
10 Stonewood Dr
Price history :
  • Single Family
  • 4,008 sqft
  • 4 beds
  • 3 baths

View more

Properties Nearby

Street Address Residens/Landlords
7 Stonewood Dr, Newton, MA 02459-2701
Single Family
  • 5 beds
  • 2.5 baths
  • 4,876 sqft
  • Built in 1969
CECILE S HERMAN REVOCABLE TRUST, Dennis A Herman
Fausta Freire, Elison Goncalves
20 Stonewood Dr, Newton, MA 02459-2701
Single Family
  • 4 beds
  • 3 baths
  • 5,127 sqft
  • Built in 1970
Janet Tr Ghazi, DIARBAKERLY JANET AKA
Kendly Vilbert, Louise Vilbert
Ellen Grant, Mayra Salazar
Joann I Diaz, Liliane Duverly
Nichole Hall, Jose Iraola
A Bly, Anthony Bly
Martha Baez, L Lizardi
Calandra Jones, Calandra E Mikel
 

FAQ about the house at 10 Stonewood Dr, Newton, MA


NOTICE: You may not use RadioAwards or the information it provides to make decisions about employment, credit, housing or any other purpose that would require Fair Credit Reporting Act (FCRA) compliance. RadioAwards is not a Consumer Reporting Agency (CRA) as defined by the FCRA and does not provide consumer reports.