10 Manchester Rd, Newton MA  02461-1121 exterior

10 Manchester Rd Newton, MA 02461 / 1121

Residence for Single Family

(UPDATED: 07/15/2025)
  • 3 Beds
  • 1 Baths
  • 2.180 square feet
Property Report

Information about property on 10 Manchester Rd, Newton MA, 02461-1121. Find out owner contacts, building history, price, neighborhood at Homemetry Address Directory.

Property Details

At 10 Manchester Road, Newton, MA stands a property, which was built in 1939 and is positioned up the street.

Facts

  • Built in 1939
  • Property use Single Family
  • Lot size 8,300 sqft
  • Effective area 2,180 sqft
  • Building type Residential
  • Rooms 6
  • Bedrooms 3
  • Stories 2
  • Exterior condition Average
  • Trim None
  • Foundation type Concrete
  • Roof material Asphalt Shingl
  • Fuel type Oil
  • Frontage 92 feet
  • Basement area 580 sqft
  • Shed area 30 sqft
  • Attached garage area 220 sqft
  • Heating & Cooling
  • Heat type Steam
  • Exterior Home Features
  • Exterior walls Wood Shingle
  • Roof type Gable

Householders and Tenants for 10 Manchester Rd, Newton MA

Possible residents contact details

Person Name Phone Number Additional Info
Bruce C Wenning Age: 97
617-969-****
Residential status:
Homeowner
Cheryl M Wenning
Debra A Carroll
Emil H Wenning Age: 108
617-969-****
June D Wenning Age: 97
617-969-****
Residential status:
Homeowner
Kathryn B Treiber
Richard E Wenning
WENNING JUNE D LIFE EST
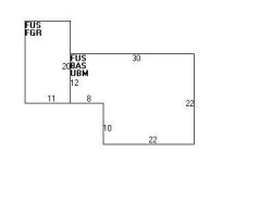
10 Manchester Rd, Newton MA  02461-1121 plot plan 10 Manchester Rd, Newton MA  02461-1121 floor plan 10 Manchester Rd, Newton MA  02461-1121 aerial view

Cost estimate history

YearAssessment
2016 $571,900
2015 $534,500
2014 $509,300
2013 $509,300
2012 $509,300
2011 $503,600
2010 $513,900
2009 $524,400
2008 $524,400
2007 $535,500
2006$519,900
2005$495,100
2004$456,400
2003$407,500
2002$407,500
2001$351,600
2000$321,100
1999$292,200
1998$255,100
1997$234,000
1996$222,900
1995$211,800
1994$205,600
1993$205,600
1992$207,900

Where is 10 Manchester Rd, Newton MA located on map?

Properties Nearby

Street AddressResidens/Landlords
16 Manchester Rd, Newton, MA 02461-1121
Single Family
  • 3 beds
  • 2 baths
  • 3,926 sqft
  • Built in 1941
Lisa Spector, Kevin R Spector
20 Manchester Rd, Newton, MA 02461-1121
Single Family
  • 3 beds
  • 2 baths
  • 3,309 sqft
  • Built in 1931
Beth E Warach, Adam Lerner
24 Manchester Rd, Newton, MA 02461-1121
Single Family
  • 4 beds
  • 2.5 baths
  • 3,224 sqft
  • Built in 1935
PRATT SUZANNE ROBIN SULLIVAN, Robin S Pratt
29 Manchester Rd, Newton, MA 02461-1120
Single Family
  • 3 beds
  • 1.5 baths
  • 3,894 sqft
  • Built in 1930
Herbert M Brody, Garth W Brody
 

FAQ about the house at 10 Manchester Rd, Newton, MA


NOTICE: You may not use RadioAwards or the information it provides to make decisions about employment, credit, housing or any other purpose that would require Fair Credit Reporting Act (FCRA) compliance. RadioAwards is not a Consumer Reporting Agency (CRA) as defined by the FCRA and does not provide consumer reports.