10 Hinckley Rd Newton, MA 02468 / 1704

Residence for Single Family

(UPDATED: 08/03/2025)
  • 3 Beds
  • 1 Baths
  • 2.605 square feet
Sold Apr 2024
$1,500,000
Property Report

Information about property on 10 Hinckley Rd, Newton MA, 02468-1704. Find out owner contacts, building history, price, neighborhood at Homemetry Address Directory.

Property Details

At 10 Hinckley Road, Newton, MA stands a property, which was built in 1925.

Facts

  • Built in 1925
  • Property use Single Family
  • Lot size 13,065 sqft
  • Effective area 2,605 sqft
  • Building type Residential
  • Rooms 7
  • Bedrooms 3
  • Bathrooms 1
  • Stories 2
  • Exterior condition Average
  • Trim None
  • Foundation type Conc Block
  • Roof material Asphalt Shingl
  • Fuel type Oil
  • Frontage 60 feet
  • Basement area 816 sqft
  • Porch area 45 sqft
  • Detached garage area 360 sqft
  • Heating & Cooling
  • Heat type Hot Wtr Radiat
  • Exterior Home Features
  • Exterior walls Clapboard
  • Roof type Hip

Householders and Tenants for 10 Hinckley Rd, Newton MA

Possible residents contact details

Person Name Phone Number Additional Info
Bradford Wright Age: 107
617-244-****
Residential status:
Homeowner
Evelyn B Rice
Frank A Guild
GUILD FRANK A LIFE EST
GUILD MARY HUGHES
GUILD MARY HUGHES LIFE EST
Marjone Wright
617-244-****
Marjorie B Wright Age: 100
617-244-****
Residential status:
Homeowner
WRIGHT BARBARA ELLEN &AL
WRIGHT BRADFORD &UX LIFE EST
WRIGHT MARJORIE B &AL LIFE EST
WRIGHT VIRGINIA CLARA &AL
WRIGHT WILLIAM BRADFOR &AL
W Wright
617-244-****
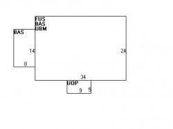
10 Hinckley Rd, Newton MA  02468-1704 plot plan 10 Hinckley Rd, Newton MA  02468-1704 floor plan 10 Hinckley Rd, Newton MA  02468-1704 aerial view

Cost estimate history

YearAssessment
2016 $718,200
2015 $671,200
2014 $639,600
2013 $639,600
2012 $639,600
2011 $631,500
2010 $644,400
2009 $657,500
2008 $657,500
2007 $676,800
2006$657,100
2005$625,800
2004$578,400
2003$516,400
2002$516,400
2001$440,200
2000$402,000
1999$365,800
1998$328,300
1997$301,200
1996$286,900
1995$296,500
1994$279,700
1993$279,700
1992$263,900

Where is 10 Hinckley Rd, Newton MA located on map?

Market Activities

To date, we have no information about market activities in 2025
Apr 2024 Sold
10 Hinckley Rd
Price history :
  • Single Family
  • 2,605 sqft
  • 3 beds
  • 2 baths
Feb 2024 Sold
10 Hinckley Rd
Price history :
  • Single Family
  • 2,605 sqft
  • 3 beds
  • 2 baths

View more

Properties Nearby

Street AddressResidens/Landlords
15 Hinckley Rd, Newton, MA 02468-1703
Single Family
  • 4 beds
  • 2 baths
  • 3,219 sqft
  • Built in 1931
Paulette J Finnerty, Richard J Finnerty
16 Hinckley Rd, Newton, MA 02468-1704
Single Family
  • 3 beds
  • 1.5 baths
  • 2,421 sqft
  • Built in 1926
John J Renner, Kathie C Renner
21 Hinckley Rd, Newton, MA 02468-1703
Single Family
  • 2 beds
  • 2 baths
  • 3,348 sqft
  • Built in 1925
PAUL DEMILLE 2014 TRUST, Paul Tr Demille
27 Hinckley Rd, Newton, MA 02468-1703
Single Family
  • 2 beds
  • 1.5 baths
  • 2,725 sqft
  • Built in 1923
Arthur J Grillo, BURNETT JOHN D &AL EXORS
31 Hinckley Rd, Newton, MA 02468-1723
Single Family
  • 4 beds
  • 2 baths
  • 3,495 sqft
  • Built in 1920
SHIFFMAN REALTY TRUST /S TRS, Joan F Shiffman
35 Hinckley Rd, Newton, MA 02468-1723
Single Family
  • 4 beds
  • 2.5 baths
  • 2,842 sqft
  • Built in 1925
Catherine M Cotton, Harvey D Cotton
 

FAQ about the house at 10 Hinckley Rd, Newton, MA


NOTICE: You may not use RadioAwards or the information it provides to make decisions about employment, credit, housing or any other purpose that would require Fair Credit Reporting Act (FCRA) compliance. RadioAwards is not a Consumer Reporting Agency (CRA) as defined by the FCRA and does not provide consumer reports.